Drehtürantriebssystem Powerturn 1-flg. Elektromechanisches Drehtürantriebssystem für einflügelige Türen bis 600 kg
- Smart swing-Funktion für leichtes manuelles Öffnen der Tür
- Stufenlos einstellbare Schließkraft von EN4-7
- Öffnungs- und Schließgeschwindigkeit kann individuell angepasst werden
- Mechanischer Endschlag im stromlosen Betrieb und elektrischer Endschlag der Automatikeinheit im Regelbetrieb, der die Tür kurz vor der Geschlossenlage beschleunigt
- Low-Energy-Funktion öffnet und schließt die Tür mit reduzierter Fahrgeschwindigkeit und erfüllt damit höchste Sicherheitsanforderungen
- Servo-Funktion zur motorischen Unterstützung bei manueller Öffnung der Tür
- Windfang-Funktion regelt das Öffnen und Schließen von zwei hintereinander liegenden Türen (Schleuse)
- Hinderniserkennung bemerkt ein Hindernis durch Berührung und stoppt den Öffnungs- oder Schließvorgang
- Automatische Reversierung erkennt ein Hindernis und kehrt zurück in die Öffnungsposition
- Push & Go-Funktion löst nach leichtem manuellen Druck auf das Türblatt die Antriebsautomatik aus
- Antrieb kann mit Rollenschiene oder Gestänge verwendet werden
- Optionale Funkempfangsplatine für kabellose Ansteuerung per Funksender
- Auslösung der Feststellung über manuelles Zuziehen des Türflügels möglich
- Reset der Feststellanlage über manuelles Öffnen des Türflügels auf 80° Öffnungswinkel oder Betriebsartenwechsel
Anwendungsbereiche
- Einflügelige rechte und linke Anschlagtüren
- Anschlagtüren bis 1600 mm Flügelbreite oder 600 kg Gewicht
- Minimale Breite des Türflügels 800 mm
- Innen- und Außentüren mit hoher Begehfrequenz
- Türblattmontage und Kopfmontage
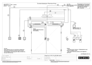
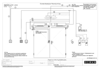
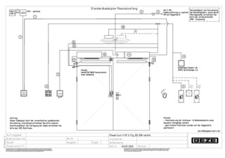
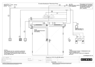
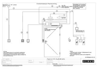
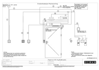
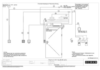
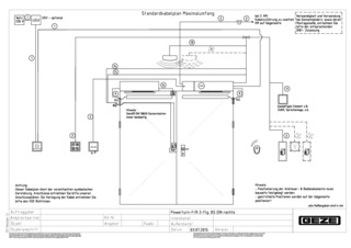
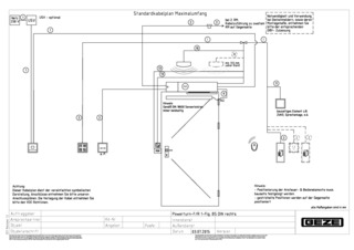
Einbausituationen in Referenzobjekten und Videos
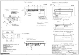
Technische Daten zum Produkt
| Drehtürantriebssystem Powerturn 1-flg. | |
| Höhe | 70 mm |
| Tiefe | 130 mm |
| Länge min. | 720 mm |
| Flügelgewicht (max.) 1-flügelig | 600 kg |
| Bandmaß (min.-max.) 2-flügelig Gestänge | 1600 mm - 3200 mm |
| Bandmaß (min.-max.) 2-flügelig Rollenschiene | 1600 mm - 3200 mm |
| Flügelbreite (min.-max.) | 800 mm - 1600 mm |
| Leibungstiefe (max.) | 560 mm |
| Antriebstyp | Elektromechanisch |
| Öffnungswinkel (max.) | 136 ° |
| Federvorspannung | EN4 - EN7 |
| DIN links | Ja |
| DIN rechts | Ja |
| Kopfmontage Bandgegenseite mit Gestänge | Ja |
| Kopfmontage Bandgegenseite mit Rollenschiene | Ja |
| Kopfmontage Bandseite mit Rollenschiene | Ja |
| Türblattmontage Bandgegenseite mit Rollenschiene | Ja |
| Türblattmontage Bandseite mit Rollenschiene | Ja |
| Türblattmontage Bandseite mit Gestänge | Ja |
| Mechanischer Endschlag | Ja |
| Elektrischer Endschlag | Ja |
| Netztrennung | Hauptschalter im Antrieb |
| Ansteuerverzögerung (max.) | 10 s |
| Betriebsspannung | 230 V |
| Nennleistung | 200 W |
| Stromversorgung für externe Verbraucher (24 V DC) | 1200 mA |
| Betriebstemperatur | -15 - 50 °C |
| Schutzart | IP30 |
| Betriebsart | Automatik, Daueroffen, Ladenschluss, Nacht, Aus |
| Auslösen und Reset der Festellanlage | per Bewegen des Türflügels, per Taster |
| Funktionsart | Vollautomat |
| Funktion Automatik | Ja |
| Funktion Low-Energy | Ja |
| Funktion Smart swing | Ja |
| Funktion Servo | Ja |
| Funktion Tasten | Ja |
| Hinderniserkennung | Ja |
| Automatische Reversierung | Ja |
| Push & Go | einstellbar |
| Bedienung | Programmschalter DPS, Programmschalter MPS, Programmschalter im Antrieb integriert |
| Parametrierung | GEZEconnects (PC + Bluetooth), Serviceterminal ST 220, Programmschalter DPS |
| Normkonformität | DIN EN 16005 |
| Rauchschalter integriert | Ja |
Downloads
KENNZEICHNUNGSPFLICHT: © GEZE GmbH
KENNZEICHNUNGSPFLICHT: © GEZE GmbH
KENNZEICHNUNGSPFLICHT: © GEZE GmbH
KENNZEICHNUNGSPFLICHT: © GEZE GmbH
KENNZEICHNUNGSPFLICHT: © GEZE GmbH
KENNZEICHNUNGSPFLICHT: © GEZE GmbH
KENNZEICHNUNGSPFLICHT: © GEZE GmbH
KENNZEICHNUNGSPFLICHT: © GEZE GmbH
KENNZEICHNUNGSPFLICHT: © GEZE GmbH
KENNZEICHNUNGSPFLICHT: © GEZE GmbH
KENNZEICHNUNGSPFLICHT: © GEZE GmbH
KENNZEICHNUNGSPFLICHT: © GEZE GmbH
KENNZEICHNUNGSPFLICHT: © GEZE GmbH
KENNZEICHNUNGSPFLICHT: © GEZE GmbH
KENNZEICHNUNGSPFLICHT: © GEZE GmbH
KENNZEICHNUNGSPFLICHT: © GEZE GmbH
KENNZEICHNUNGSPFLICHT: © GEZE GmbH
KENNZEICHNUNGSPFLICHT: © GEZE GmbH
KENNZEICHNUNGSPFLICHT: © Nicolas Thome / GEZE GmbH
KENNZEICHNUNGSPFLICHT: © GEZE GmbH