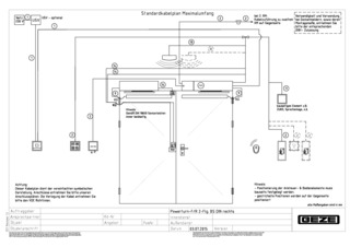
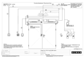
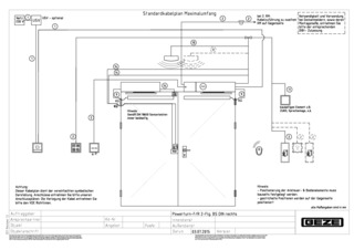
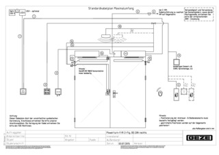
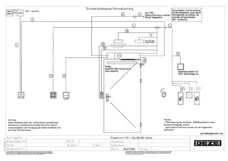
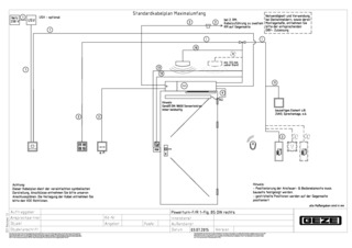
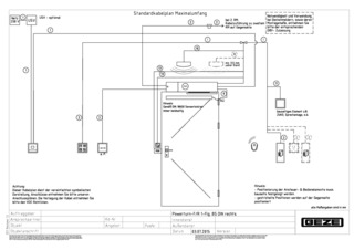
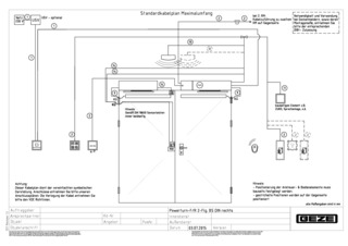
Drehtürantriebssystem Powerturn 1-flg.
Elektromechanisches Drehtürantriebssystem für einflügelige Türen bis 600 kg
Smart swing-Funktion für leichtes manuelles Öffnen der Tür
Stufenlos einstellbare Schließkraft von EN 4-7
Öffnungs- und Schließgeschwindigkeit kann individuell angepasst werden
Mechanischer Endschlag im stromlosen Betrieb und elektrischer Endschlag der Automatikeinheit im Regelbetrieb, der die Tür kurz vor der Geschlossenlage beschleunigt
Low-Energy-Funktion öffnet und schließt die Tür mit reduzierter Fahrgeschwindigkeit und erfüllt damit höchste Sicherheitsanforderungen
Servo-Funktion zur motorischen Unterstützung bei manueller Öffnung der Tür
Windfang-Funktion regelt das Öffnen und Schließen von zwei hintereinander liegenden Türen (Schleuse)
Hinderniserkennung bemerkt ein Hindernis durch Berührung und stoppt den Öffnungs- oder Schließvorgang
Automatische Reversierung erkennt ein Hindernis und kehrt zurück in die Öffnungsposition
Push & Go-Funktion löst nach leichtem manuellen Druck auf das Türblatt die Antriebsautomatik aus
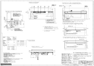
Antrieb kann mit Rollenschiene oder Gestänge verwendet werden
Optionale Funkempfangsplatine für kabellose Ansteuerung per Funksender
Auslösung der Feststellung über manuelles Zuziehen des Türflügels möglich
Reset der Feststellanlage über manuelles Öffnen des Türflügels auf 80° Öffnungswinkel oder Betriebsartenwechsel
Montagevideo einer GEZE Powerturn (Drehtürantrieb) Sensorrollenschiene
Mit der GEZE Sensorrollenschiene für den Drehtürantrieb Powerturn ist die Montage auch auf sehr schmalen Türprofilen möglich.
Montagevideo GEZE Powerturn IS-Mechanik, ein halbautomatisiertes System mit Drehtürantrieb
Der Drehtürantrieb Powerturn mit integrierter Schließfolgeregelung ist ideal für zweiflügelige Brandschutztüren und für Flucht- und Rettungswegtüren geeignet
Montagevideo GEZE Powerturn - ein Elektromechanischer Drehtürantrieb
Der Drehtürantrieb Powerturn zeichnet sich mit flexibler Montage aus. Er macht es möglich, verschiedene Montagearten mit nur einer Antriebsvariante zu realisieren.
Barrierefreiheit - mit dem neuen GEZE Powerturn.
Der Drehtürantrieb Powerturn öffnet auch große schwere Türen wie Brandschutztüren mühelos in jeder Begehsituation. Möglich macht dies die einzigartige Smart swing Funktion die auch den Anforderungen der sogenannten Inklusion entspricht.
Unser stärkster Antrieb: GEZE Powerturn.
Der automatische Drehtürantrieb Powerturn öffnet auch große, schwere Türen bis 600 Kilogramm Flügelgewicht zuverlässig und sicher. Auch für Brandschutztüren ist der Drehtürantrieb von GEZE die passende Lösung.
Montagefreiheit - mit dem neuen GEZE Powerturn.
Das clevere GEZE Montagesystem des Drehtürantriebes Powerturn reduziert nicht nur die Lagerhaltung, sondern erleichtert Verarbeitern auch den Montageprozess.
Gestaltungsfreiheit - mit dem neuen GEZE Powerturn.
Der automatische Drehtürantrieb Powerturn fügt sich mit seinem dezenten Design und nur sieben Zentimeter Bauhöhe in jede Einbausituation ein. Damit bietet der Drehtürantrieb nahezu grenzenlose Freiheit für die individuelle Gebäudegestaltung.
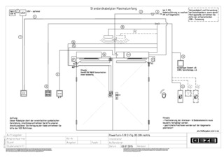
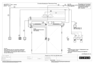
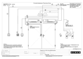
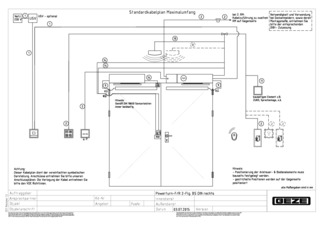
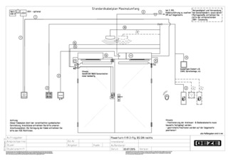
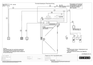
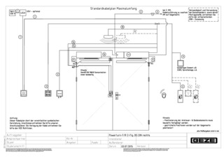
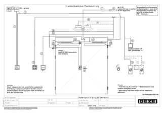
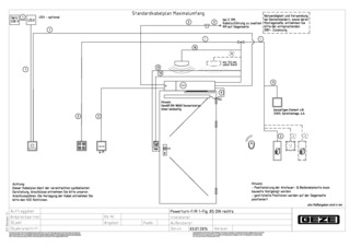
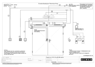
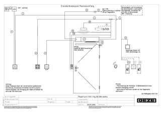
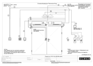
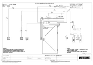
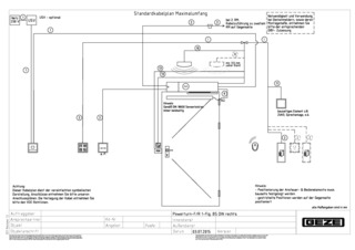
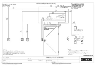
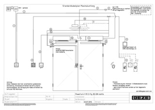
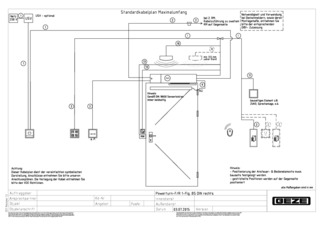
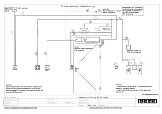
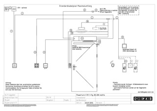
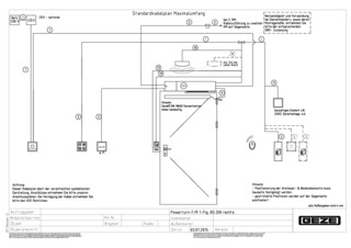
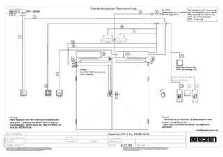
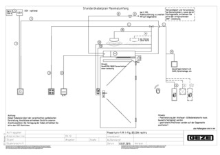
Powerturn - Elektromechanischer Drehtürantrieb für Türen bis 600 kg
Powerturn im Dänischen Verband für Menschen mit Behinderungen, Taastrup, Dänemark
Powerturn Software Update 2.1
Mit dem Update auf die Version 2.1 ist der Powerturn ein starker Drehtürantrieb, der alle Funktionalitäten vereint.
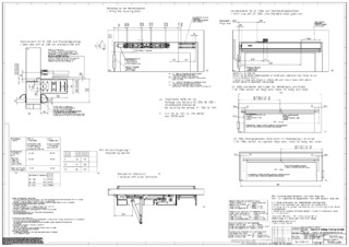
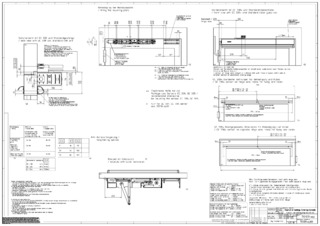
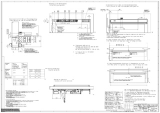
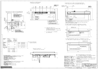
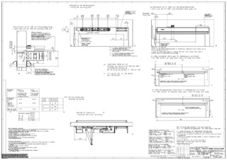
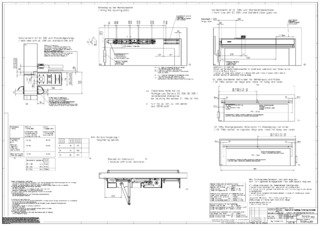
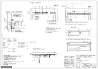
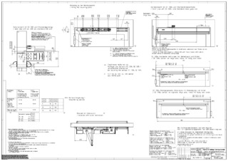
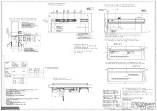
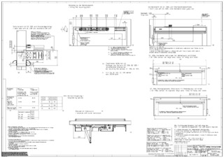
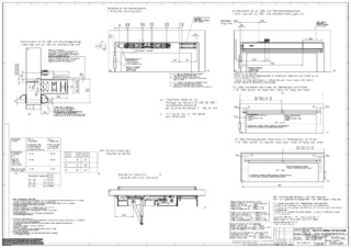
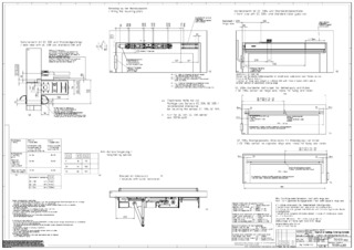
Technische Daten zum Produkt
Drehtürantriebssystem Powerturn 1-flg.
Höhe
70 mm
Tiefe
130 mm
Länge min.
720 mm
Flügelgewicht (max.) 1-flügelig
600 kg
Bandmaß (min.-max.) 2-flügelig Gestänge
1600 mm - 3200 mm
Bandmaß (min.-max.) 2-flügelig Rollenschiene
1600 mm - 3200 mm
Flügelbreite (min.-max.)
800 mm - 1600 mm
Leibungstiefe (max.)
560 mm
Antriebstyp
Elektromechanisch
Öffnungswinkel (max.)
136 °
Federvorspannung
EN 4 - EN 7
DIN links
Ja
DIN rechts
Ja
Kopfmontage Bandgegenseite mit Gestänge
Ja
Kopfmontage Bandgegenseite mit Rollenschiene
Ja
Kopfmontage Bandseite mit Rollenschiene
Ja
Türblattmontage Bandgegenseite mit Rollenschiene
Ja
Türblattmontage Bandseite mit Rollenschiene
Ja
Türblattmontage Bandseite mit Gestänge
Ja
Mechanischer Endschlag
Ja
Elektrischer Endschlag
Ja
Netztrennung
Hauptschalter im Antrieb
Ansteuerverzögerung (max.)
10 s
Betriebsspannung
230 V
Nennleistung
200 W
Stromversorgung für externe Verbraucher (24 V DC)
1200 mA
Betriebstemperatur
-15 - 50 °C
Schutzart
IP30
Betriebsart
Automatik, Daueroffen, Ladenschluss, Nacht, Aus
Auslösen und Reset der Festellanlage
per Bewegen des Türflügels, per Taster
Funktionsart
Vollautomat
Funktion Automatik
Ja
Funktion Low-Energy
Ja
Funktion Smart swing
Ja
Funktion Servo
Ja
Funktion Tasten
Ja
Hinderniserkennung
Ja
Automatische Reversierung
Ja
Push & Go
einstellbar
Bedienung
Programmschalter DPS, Programmschalter MPS, Programmschalter im Antrieb integriert
Parametrierung
GEZEconnects (PC + Bluetooth), Serviceterminal ST 220, Programmschalter DPS