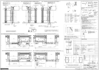
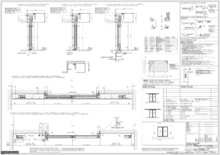
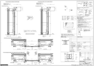
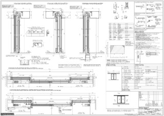
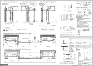
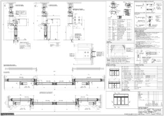
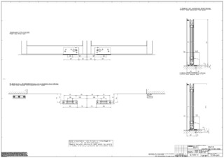
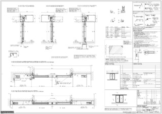
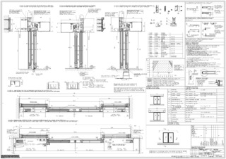
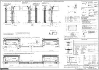
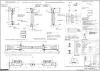
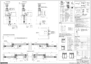
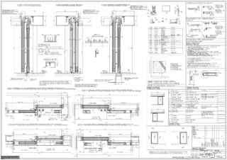
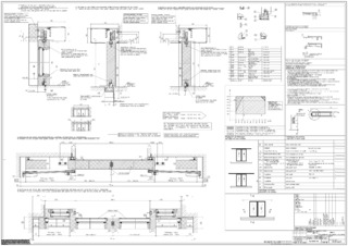
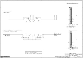
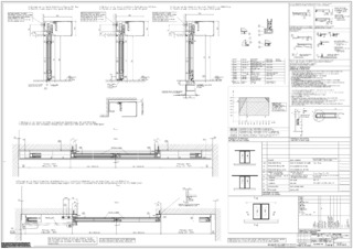
ECdrive T2 Automatisches Linear-Schiebetürsystem für Türen bis 140 kg Flügelgewicht
- Schlankes Design mit nur 100 mm Haubenhöhe für mehr gestalterischen Freiraum
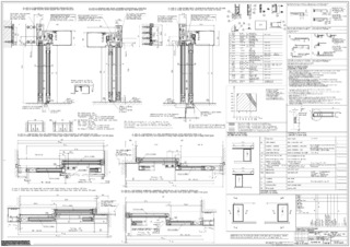
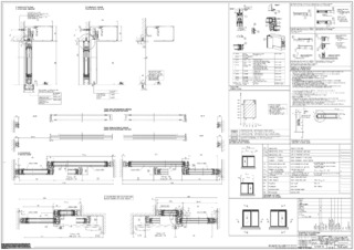
- Mit Doppelrollenwagen und GCprofile Therm bis 140 kg Flügelgewicht zulässig
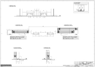
- Effiziente Montage durch vorgebohrte Laufschiene und Langlöcher
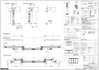
- Durchgehende Bodenführung zur kontrollierten Ableitung von Regenwasser erhältlich
- Integrierte Kabelführungen erleichtern das Verlegen der Kabel
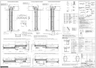
- Vernetzbar und mittels offenem Standard (BACnet) in die Gebäudeautomation integrierbar
- Eigenständige Fehlererkennung und Protokollierung
- Frei parametrierbare Ein- und Ausgänge für unterschiedliche Funktionen
- Integrierter Akku für Notöffnung und -schließung bei Stromausfall
- Selbstreinigender Rollenwagen reduziert den Wartungsaufwand
- Verschiedene mechanische und elektrische Verriegelungen sind optional verfügbar
- Service Schnittstelle für einfache Wartung
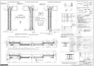
Der ECdrive T2 sorgt mit seinem schlanken Design für neue Gestaltungsmöglichkeiten und das zu einem hervorragenden Preis-Leistungsverhältnis. In Verbindung mit dem Profilsystem GCprofile Therm wird die Energieeffizienz zusätzlich verbessert.
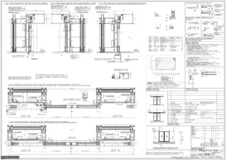
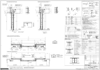
Anwendungsbereiche
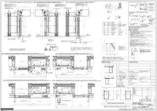
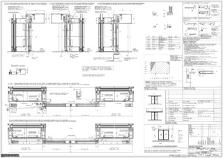
- Ein- und zweiflügelige Schiebetürsysteme
- Innen- und Außentüren mit hoher Begehfrequenz
- Komplettlösung für Eingangsbereiche mit GCprofile Therm und Oberlicht
- Bei erhöhten Anforderungen an die Dichtheit oder Energieeffizienz
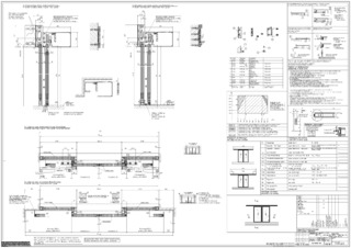
- Öffnungsweiten von 700 bis 3000 mm möglich
- Türflügelgewichte bis 140 kg je Flügel
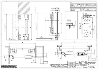
- Geeignete Profilsysteme sind feingerahmtes Profilsystem mit Isolier- und Mono-Glas, GCprofile Therm, ESG-Klemmprofil, bauseitige Rahmen- und Holzflügel
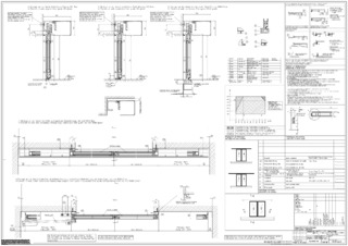
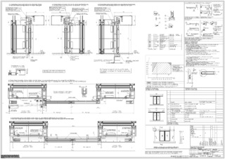
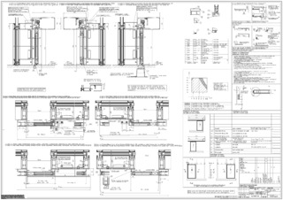
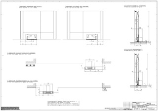
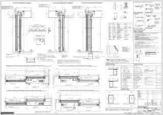
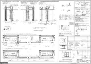
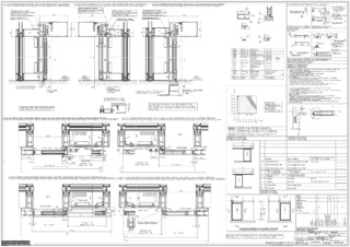
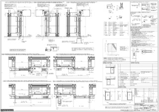
Einbausituationen in Referenzobjekten und Videos
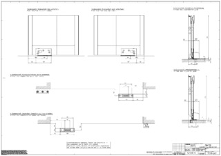
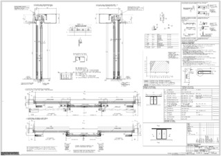
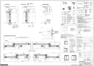
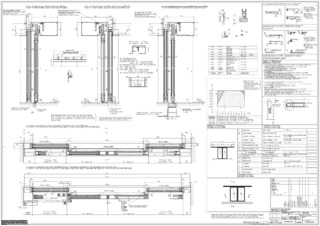
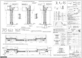
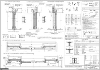
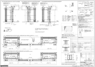
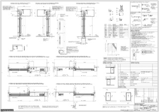
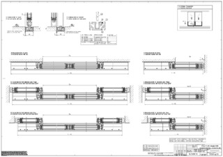
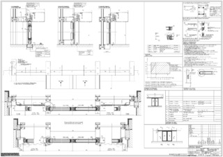
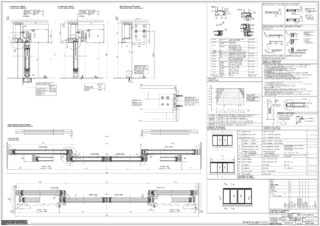
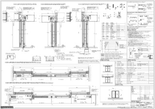
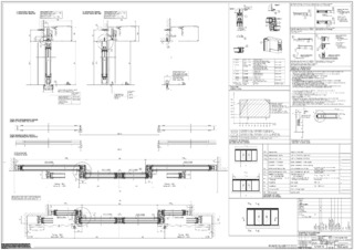
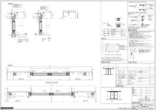
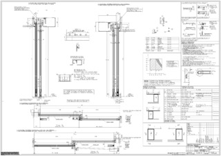
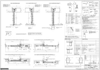
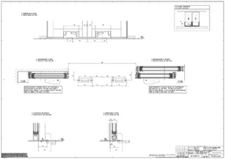
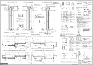
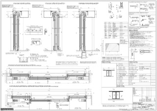
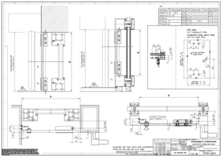
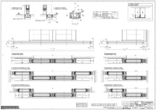
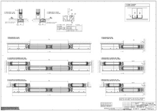
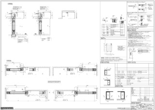
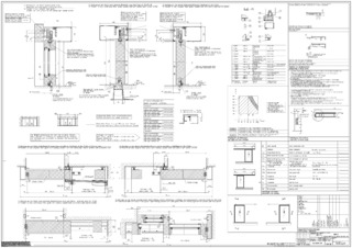
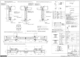
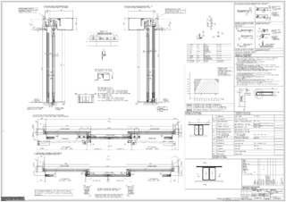
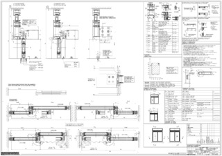
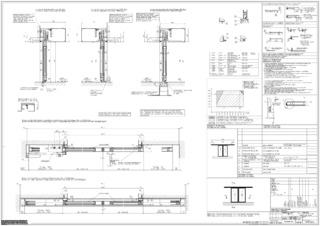
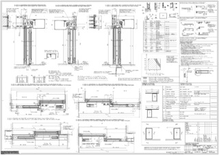
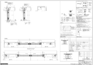
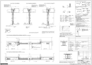
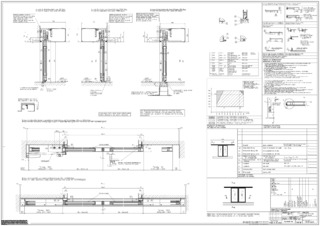
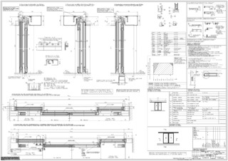
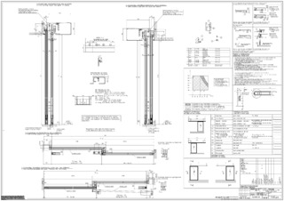
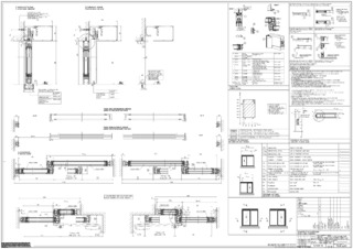
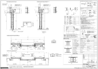
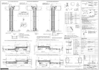
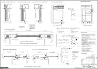
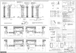
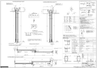
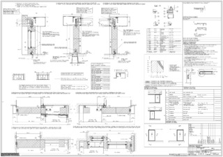
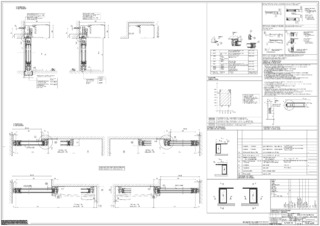
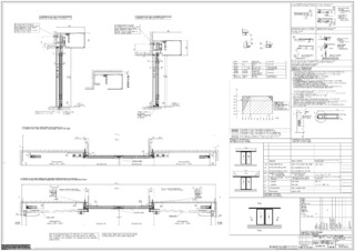
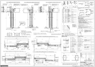
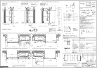
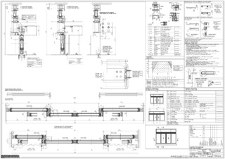
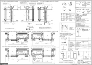
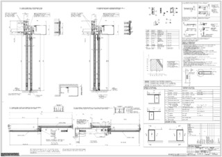
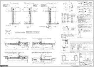
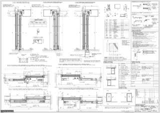
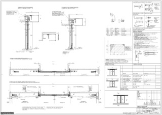
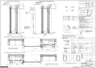
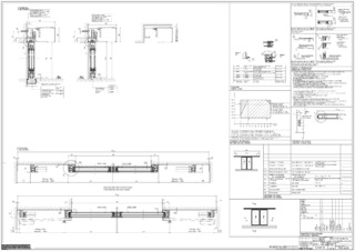
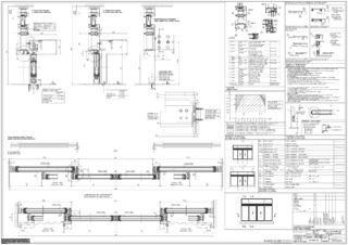
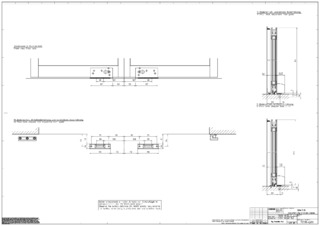
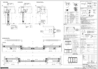
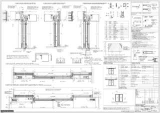
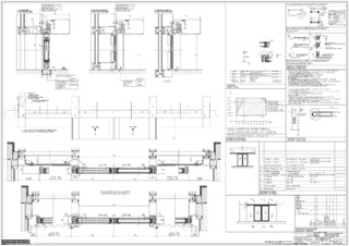
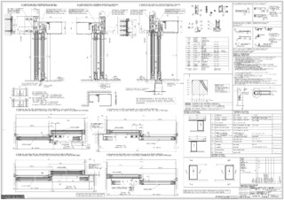
Technische Daten zum Produkt
| ECdrive T2 | |
| Für 1-flügelige Türsysteme | Ja |
| Für 2-flügelige Türsysteme | Ja |
| Isolierglas feingerahmt | Ja |
| MONO-Glas feingerahmt | Ja |
| ESG-Klemmprofil | Ja |
| Rahmenflügel (bauseitig) | Ja |
| Holzflügel (bauseits) | Ja |
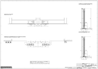
| Höhe | 100 mm |
| Tiefe | 190 mm |
| Flügelgewicht (max.) 1-flügelig | 140 kg |
| Flügelgewicht (max.) 2-flügelig | 140 kg |
| Öffnungsweite 1-flügelig | 700 mm - 3000 mm |
| Öffnungsweite 1-flügelig mit GCprofile Therm | 1500 mm |
| Öffnungsweite 2-flügelig | 900 mm - 3000 mm |
| Öffnungsweite 2-flügelig mit GCprofile Therm | 3000 mm |
| Betriebstemperatur | -15 - 50 °C |
| Schutzart | IP20 |
| Netztrennung | Hauptschalter im Antrieb |
| Normkonformität | DIN 18650, DIN EN ISO 13849: Performance Level D, EN 16005 |
Downloads
KENNZEICHNUNGSPFLICHT: © Samuel Duplaix / GEZE GmbH
KENNZEICHNUNGSPFLICHT: © Samuel Duplaix / GEZE GmbH
KENNZEICHNUNGSPFLICHT: © GEZE GmbH
KENNZEICHNUNGSPFLICHT: © GEZE GmbH
KENNZEICHNUNGSPFLICHT: © GEZE GmbH
KENNZEICHNUNGSPFLICHT: © GEZE GmbH