Slimdrive

Slimdrive SL-RC2 Automatic linear sliding door system with burglar resistance in accordance with resistance class RC2

Slimdrive SL RC 2 Single and double leaf sliding door systems. Inside and exterior doors with the highest safety demands. Certified burglar resistance according to resistance class RC 2. The RC 2 function is only available in the "night mode" of operation where the door is locked via the rod locking.
  • Certified burglar resistance according to resistance class RC2
  • The RC2 function is only available in the "Night" mode of operation, in which the door is locked with rod locking
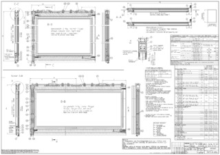
  • Equipped with a rod locking and reinforced profile components
  • Very quiet running, low-wear direct current drive with a height of only 7 cm
  • Can be networked, and integrated into the building automation via open standard (BACnet)
  • Independent error recognition and recording
Show more
  • Freely configurable inputs and outputs for different functions
  • Integrated, rechargeable battery for emergency opening in case of safety-relevant faults, such as power failure
Contact us

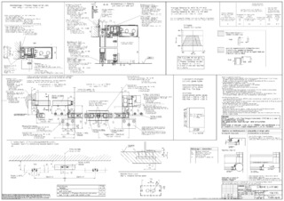
Application Areas

  • Single and double leaf sliding door systems
  • Interior and exterior doors with maximum safety requirements
  • Opening widths of 800 to 3000 mm possible
  • Door leaf weight of up to 120 kg per leaf
  • Suitable profile systems are fine-framed profile systems with ISO and mono glass, in accordance with the RC2 resistance class

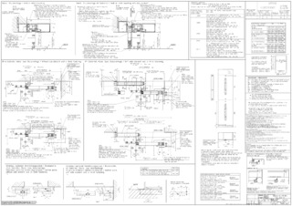
Technical data

Slimdrive SL-RC2
For 1-leaf door systems Yes
For 2-leaf door systems Yes
Fine-framed insulating glass Yes
MONO glass fine-framed Yes
Height 70 mm
Depth 190 mm
Leaf weight (max.) 1-leaf 120 kg
Leaf weight (max.) 2-leaf 120 kg
Opening width 1-leaf 800 mm - 3000 mm
Opening width 2-leaf 900 mm - 3000 mm
Service temperature -15 - 50 °C
IP rating IP20
Disconnection from mains Main switch in the drive
Standard conformity DIN 18650, DIN EN ISO 13849: Performance Level D, EN 16005

Downloads

Variants & Accessories

Contact

We would be happy to assist you +49-7152-203-0 Mo–Thu: 7.30 a.m. – 5 p.m. / Fri: 7.30 a.m. – 4 p.m Hotline for architects +49-7152-203-112 Mo-Thu: 9:00 a.m. - 4:00 p.m. / Fri: 9:00 a.m. - 3:00 p.m. Service Hotline +49-1802-923392 (0.06 € / Calling from landline, mobile telephony max. 0.42 €)