TS 5000 L-R-ISM Gleitschienentürschließersystem Bandgegenseite mit Antipanikfunktion für zweiflügelige Türen bis 2800 mm Bandabstand mit integrierter Schließfolgeregelung, elektrischer Feststellung und Rauchschalterzentrale
- System aus zwei Türschließern TS 5000 L und R-ISM Gleitschiene
- Stufenlos einstellbare Schließkraft von EN 2-6
- Betriebsspannung 230 V AC
- Elektrische Feststellung in der Gleitschiene mit Feststellbereich ab 80°
- Elektrische Feststellung in der Gleitschiene mit Feststellbereich 80°-130°
- Schließfolgeregelung hält den Gangflügel in Warteposition bis der Standflügel geschlossen ist
- Integrierte Rauchschalterzentrale, deren Signal im Brandfall die Tür selbstständig schließt
- Rauchschalter mit Verschmutzungsanzeige und Alarmschwellennachführung
- Zusätzliche Rauchmelder anschließbar
- Hydraulischer Endschlag, der die Tür kurz vor Geschlossenlage beschleunigt
- Schließgeschwindigkeit kann individuell angepasst werden
- Integrierte Öffnungsdämpfung, bremst stark aufgeworfene Türen ab
- Optische Schließkraftanzeige zum leichten Kontrollieren der Einstellung
- Alle Funktionen von vorn einstellbar
Anwendungsbereiche
- Feuer- und Rauchschutztüren
- Zweiflügelige Anschlagtüren
- Symmetrische und asymmetrische Türteilung möglich
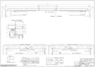
- Anschlagtüren bis 2800 mm Bandabstand und 1400 mm Flügelbreite
- Minimaler Bandabstand 1560 mm, minimale Breite des Gangflügels 905 mm und des Standflügels 380 mm
- Türblattmontage Bandgegenseite
Einbausituationen in Referenzobjekten und Videos
Technische Daten zum Produkt
| TS 5000 L-R-ISM | |
| Barrierefrei nach DIN 18040 bis Flügelbreite (max.) in mm | 1400 mm |
| Flügelbreite (max.) | 1400 mm |
| Montageart | Türblattmontage Bandgegenseite |
| Öffnungswinkel (max.) | 130 ° |
| Eingangsspannung | 230 V AC |
| Frequenz Versorgungsspannung | 50 Hz |
| Minimaler Bandabstand | 1560 mm |
| Minimale Standflügelbreite | 380 mm |
| Eignung Brandschutztüren | Ja |
| Schließkraft einstellbar | Ja, stufenlos |
| Schließgeschwindigkeit einstellbar | Ja |
| Endschlag einstellbar | Ja, über Ventil |
| Öffnungsdämpfung integriert | Ja, hydraulisch einstellbar |
| Position Schließkraftverstellung | Vorn |
| Optische Schließkraftanzeige | Ja |
| Feststellung | Elektrisch |
| Feststellung am Gangflügel / Standflügel | Ja / Ja |
| Feststellbereich | 80 ° - 130 ° |
| Rauchschalter integriert | Ja |
| Schließfolgeregelung integriert | Ja |