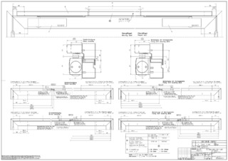
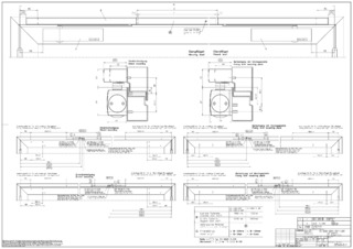
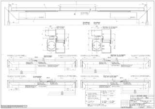
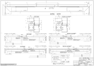
Gleitschiene 2-flügelig

TS 5000 R-ISM/0 Gleitschienentürschließersystem für zweiflügelige Türen mit integrierter Schließfolgeregelung und Rauchschalter ohne elektrische Feststellung

Türschließersystem TS 5000 R-ISM/0 SoftClose / ECline mit HM Gleitschienentürschließersystem für zweiflügelige Türen mit Schließfolgeregelung, Rauchschalter und mit integrierter Öffnungsdämpfung, welche stark aufgeworfene Türen abbremst.
  • System aus zwei Türschließern TS 5000 und R-ISM/0 Gleitschiene ohne elektrische Feststellung
  • Stufenlos einstellbare Schließkraft EN 2-6
  • Betriebsspannung 230 V AC
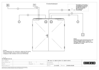
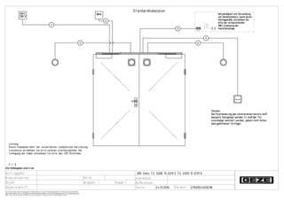
  • Schließfolgeregelung hält den Gangflügel in Warteposition bis der Standflügel geschlossen ist
  • Integrierte Rauchschalterzentrale, Verschmutzungsanzeige und Alarmschwellennachführung
  • Hydraulischer Endschlag, der die Tür kurz vor Geschlossenlage beschleunigt
Mehr anzeigen
  • Schließgeschwindigkeit kann individuell angepasst werden
  • Integrierte Öffnungsdämpfung, bremst stark aufgeworfene Türen ab
  • Optische Schließkraftanzeige zum leichten Kontrollieren der Einstellung
  • Alle Funktionen von vorn einstellbar
Kontaktieren Sie uns

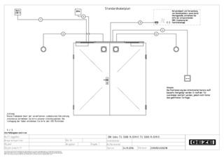
Anwendungsbereiche

  • Feuer- und Rauchschutztüren
  • Zweiflügelige rechte und linke Anschlagtüren
  • Symmetrische und asymmetrische Türteilung möglich
  • Anschlagtüren bis 2800 mm Bandabstand und 1400 mm Flügelbreite
  • Minimaler Bandabstand 1500 mm, minimale Breite des Gangflügels 875 mm und des Standflügels 400 mm
  • Feststellanlagen mit Haftmagnet (als Zubehör) und Rauchschalter (integriert in Gleitschiene)
  • Türblattmontage Bandseite

Technische Daten zum Produkt

TS 5000 R-ISM/0
Barrierefrei nach DIN 18040 bis Flügelbreite (max.) in mm 1400 mm
Flügelbreite (max.) 1400 mm
Montageart Türblattmontage Bandseite
Öffnungswinkel (max.) 180 °
Eingangsspannung 230 V AC
Frequenz Versorgungsspannung 50 Hz
Minimaler Bandabstand 1500 mm
Minimale Standflügelbreite 400 mm
Eignung Brandschutztüren Ja
Schließkraft einstellbar Ja, stufenlos
Schließgeschwindigkeit einstellbar Ja
Endschlag einstellbar Ja, über Ventil
Öffnungsdämpfung integriert Ja, hydraulisch einstellbar
Position Schließkraftverstellung Vorn
Optische Schließkraftanzeige Ja
Feststellung Elektrisch
Feststellung am Gangflügel / Standflügel Optional / Optional
Feststellbereich 180 °
Rauchschalter integriert Ja
Schließfolgeregelung integriert Ja

Downloads

Varianten & Zubehör

Kontakt

Wir helfen Ihnen gern +49-7152-203-0 Mo – Do: 7.30 – 17.00 Uhr /Fr: 7.30 – 16.00 Uhr Architektenhotline +49-7152-203-112 Mo – Do: 9.00- 16.00 Uhr / Fr: 9.00 – 15.00 Uhr Service Hotline +49-1802-923392 (0,06 € / Anruf aus dem Festnetz, Mobilfunk max. 0,42 €)