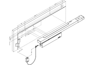
Freilauftürschließer 1-flügelig

TS 5000 RFS 3-6 Gleitschienentürschließer für einflügelige Türen bis 1400 mm Flügelbreite mit elektrischer Freilauffunktion und Rauchschalterzentrale

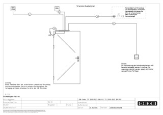
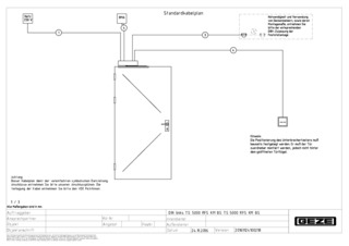
Türschließer TS 5000 RFS Gleitschienentürschließer für 1-flügelige Türen bis 1400 mm Flügelbreite mit elektrischer Freilauffunktion und Rauchschalterzentrale
  • Stufenlos einstellbare Schließkraft von EN 3-6
  • Betriebsspannung 230 V AC
  • Für rechts und links angeschlagene Türen ohne Umstellung verwendbar
  • Freilauffunktion nach einmaligen Öffnen der Tür auf ca. 90°
  • Komfortrastfunktion arretiert die Tür am Ende des Freilaufbereichs
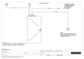
  • Integrierte Rauchschalterzentrale, deren Signal im Brandfall die Tür selbstständig schließt
Mehr anzeigen
  • Rauchschalter mit Verschmutzungsanzeige und Alarmschwellennachführung
  • Zusätzliche Rauchmelder anschließbar
  • Hydraulischer Endschlag, der die Tür kurz vor Geschlossenlage beschleunigt
  • Schließgeschwindigkeit kann individuell angepasst werden
  • Optische Schließkraftanzeige zum leichten Kontrollieren der Einstellung
  • Alle Funktionen von vorn einstellbar
Kontaktieren Sie uns

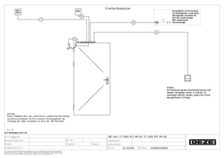
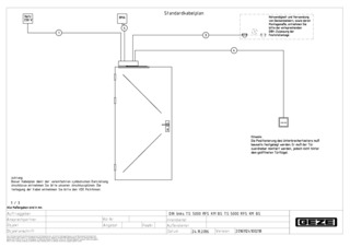
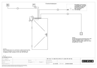
Anwendungsbereiche

  • Feuer- und Rauchschutztüren
  • Rechte und linke Anschlagtüren
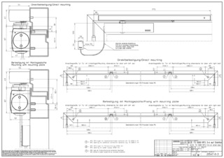
  • Anschlagtüren bis 1400 mm Flügelbreite
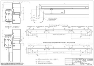
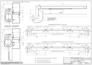
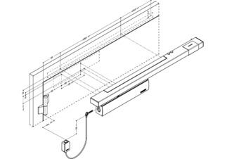
  • Türblattmontage Bandseite
  • Feststellanlagen mit integrierter Feststellung mit Freilauf
  • Barrierefreie Zugänge nach DIN 18040

Technische Daten zum Produkt

TS 5000 RFS 3-6
Schließkraft nach EN 1154 EN 3 - 6
Barrierefrei nach DIN 18040 bis Flügelbreite (max.) in mm 1400 mm
Flügelbreite (max.) 1400 mm
Montageart Türblattmontage Bandseite
Öffnungswinkel (max.) 180 °
Eingangsspannung 230 V AC
Eignung Brandschutztüren Ja
Freilaufbereich 85 ° - 160 °
Schließkraft einstellbar Ja, stufenlos
Schließgeschwindigkeit einstellbar Ja
Endschlag einstellbar Ja, über Ventil
Öffnungsdämpfung integriert Nein
Position Schließkraftverstellung Vorn
Optische Schließkraftanzeige Ja
Feststellung Elektrisch, für Freilauffunktion
Rauchschalter integriert Ja

Downloads

Varianten & Zubehör

Kontakt

Wir helfen Ihnen gern +49-7152-203-0 Mo – Do: 7.30 – 17.00 Uhr /Fr: 7.30 – 16.00 Uhr Architektenhotline +49-7152-203-112 Mo – Do: 9.00- 16.00 Uhr / Fr: 9.00 – 15.00 Uhr Service Hotline +49-1802-923392 (0,06 € / Anruf aus dem Festnetz, Mobilfunk max. 0,42 €)