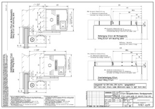
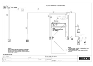
Drehtürantriebssystem ECturn Inside Integrierbares elektromechanisches Drehtürantriebssystem für barrierefreie einflügelige Türen bis 125 kg
- Antrieb ist in Türblatt oder Zarge eingelassen und erfüllt höchste Designansprüche
- Öffnungs- und Schließgeschwindigkeit kann individuell angepasst werden
- Elektrischer Endschlag, der die Tür kurz vor Geschlossenlage beschleunigt
- Low-Energy-Funktion öffnet die Tür mit reduzierter Fahrgeschwindigkeit und erfüllt damit höchste Sicherheitsanforderungen
- Hinderniserkennung bemerkt ein Hindernis durch Berührung und stoppt den Öffnungs- oder Schließvorgang
- Automatische Reversierung erkennt ein Hindernis und kehrt zurück in die Öffnungsposition
- Push & Go-Funktion löst nach leichtem manuellen Druck auf das Türblatt die Antriebsautomatik aus
- Antrieb wird mit Gleitschiene verwendet
- Optionaler Akku sorgt bei Stromausfall für maximale Sicherheit
- Optionale Funkempfangsplatine für kabellose Ansteuerung per Funksender
Anwendungsbereiche
- Einflügelige rechte und linke Anschlagtüren
- Anschlagtüren bis 1100 mm Flügelbreite oder 125 kg Gewicht
- Eingangs- und Innentüren mit mäßiger Begehfrequenz
- Für Türblattstärken ab 55 mm
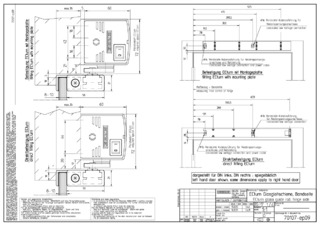
- Integrierte Montage in Türflügel oder Zarge
- Barrierefreie Zugänge
Einbausituationen in Referenzobjekten und Videos
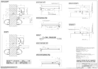
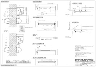
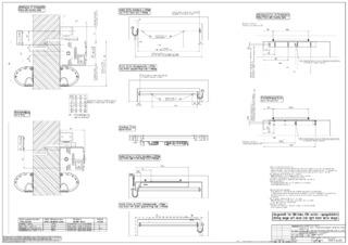
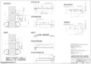
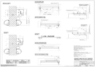
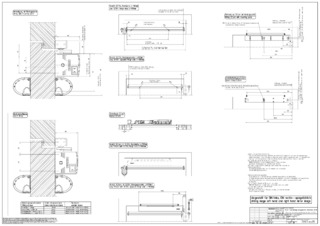
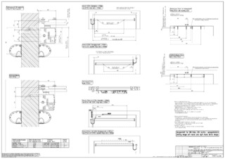
Technische Daten zum Produkt
| Drehtürantriebssystem ECturn Inside | |
| Höhe | 61 mm |
| Breite | 566 mm |
| Tiefe | 45 mm |
| Flügelgewicht (max.) 1-flügelig | 125 kg |
| Flügelbreite (min.-max.) | 700 mm - 1100 mm |
| Antriebstyp | Elektromechanisch |
| Öffnungswinkel (max.) | 110 ° |
| DIN links | Ja |
| DIN rechts | Ja |
| Montage im Türblatt | Ja |
| Montage im Türrahmen | Ja |
| Elektrischer Endschlag | Ja |
| Ansteuerverzögerung (max.) | 10 s |
| Betriebsspannung | 110 – 230 V |
| Nennleistung | 92 W |
| Stromversorgung für externe Verbraucher (24 V DC) | 600 mA |
| Betriebstemperatur | -15 - 50 °C |
| Schutzart | IP20 |
| Betriebsart | Aus, Automatik, Daueroffen, Nacht |
| Funktionsart | Vollautomat |
| Funktion Automatik | Ja |
| Funktion Low-Energy | Ja |
| Funktion Tasten | Ja |
| Hinderniserkennung | Ja |
| Automatische Reversierung | Ja |
| Push & Go | einstellbar |
| Bedienung | Programmschalter im Antrieb integriert, Programmschalter TPS, Programmschalter MPS |
| Parametrierung | Steuerung, Programmschalter DPS |
| Normkonformität | EN 16005 |