TS 500 N EN 3 mit Feststellung

Schließkörper TS 500 N EN 3 Grundkörper für Bodentürschließer EN 3

GEZE TS 500 N EN 3 Schließkörper
  • Fixe Schließkraft von EN 3
  • Für rechts und links angeschlagene Türen ohne Umstellung verwendbar
  • Schließgeschwindigkeit kann individuell angepasst werden
  • Hydraulischer Endschlag, der die Tür kurz vor Geschlossenlage beschleunigt
  • Integrierte Öffnungsdämpfung, bremst stark aufgeworfene Türen ab
  • Alle Funktionen von oben und im eingebauten Zustand einstellbar
Kontaktieren Sie uns

Anwendungsbereiche

  • Rechte und linke Anschlag- und Pendeltüren
  • Anschlag- und Pendeltüren bis 950 mm Flügelbreite und 100 kg Gewicht
  • Bodenmontage verdeckt liegend
  • Verwendung an Feuer- und Rauchschutztüren nicht erlaubt.

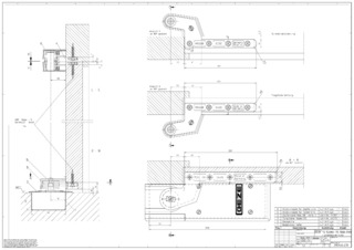
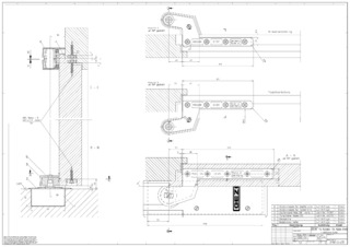
Technische Daten zum Produkt

Schließkörper TS 500 N EN 3
Einsatz an Anschlag-/Pendeltür Anschlagtür, Pendeltür
Öffnungswinkel (max.) 170 °
Schließkraft nach EN 1154 EN 3
Flügelbreite (max.) 950 mm
Flügelgewicht (max.) 100 kg
DIN Richtung links / rechts
Normkonformität EN 1154:1996/A1:2002/AC:2006
Länge 278 mm
Breite 82 mm
Höhe 42 mm
Verstellbereich Zementkasten Länge 10 mm
Verstellbereich Zementkasten Breite 10 mm
Verstellbereich Zementkasten Höhe 6 mm
Schließkraft einstellbar Nein
Schließgeschwindigkeit einstellbar Ja
Endschlag einstellbar Nein
Öffnungsdämpfung integriert mechanisch fix
Sicherheitsventil gegen Überlast Ja
Thermostabilisierte Ventile Ja
Schließwirkung ab 170 °
Feststellung Optional
Feststellbereich 85 ° - 120 °

Downloads

Varianten & Zubehör

Kontakt

Wir helfen Ihnen gern +49-7152-203-0 Mo – Do: 7.30 – 17.00 Uhr /Fr: 7.30 – 16.00 Uhr Architektenhotline +49-7152-203-112 Mo – Do: 9.00- 16.00 Uhr / Fr: 9.00 – 15.00 Uhr Service Hotline +49-1802-923392 (0,06 € / Anruf aus dem Festnetz, Mobilfunk max. 0,42 €)