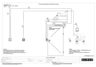
ECturn

Drehtürantriebssystem ECturn Elektromechanisches Drehtürantriebssystem für barrierefreie einflügelige Türen bis 125 kg

ECturn
  • Öffnungs- und Schließgeschwindigkeit kann individuell angepasst werden
  • Elektrischer Endschlag, der die Tür kurz vor Geschlossenlage beschleunigt
  • Low-Energy-Funktion öffnet und schließt die Tür mit reduzierter Fahrgeschwindigkeit und erfüllt damit höchste Sicherheitsanforderungen
  • Hinderniserkennung bemerkt ein Hindernis durch Berührung und stoppt den Öffnungs- oder Schließvorgang
  • Automatische Reversierung erkennt ein Hindernis und kehrt zurück in die Öffnungsposition
  • Push & Go-Funktion löst nach leichtem manuellen Druck auf das Türblatt die Antriebsautomatik aus
Mehr anzeigen
  • Antrieb kann mit Gleitschiene oder Gestänge verwendet werden
  • Glasgleitschiene erhältlich zur Verwendung an Glastüren mit einer Glasstärke von 8-10 mm
  • Optionaler Akku sorgt bei Stromausfall für maximale Sicherheit
  • Optionale Funkempfangsplatine für kabellose Ansteuerung per Funksender
Kontaktieren Sie uns

Anwendungsbereiche

  • Einflügelige rechte und linke Anschlagtüren
  • Anschlagtüren bis 1100 mm Flügelbreite oder 125 kg Gewicht
  • Eingangs- und Innentüren mit mäßiger Begehfrequenz
  • Automatisierung rahmenloser Ganzglastüren
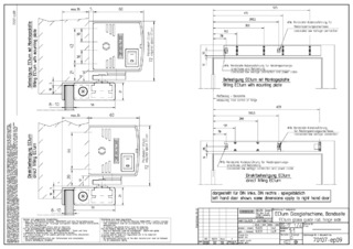
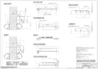
  • Türblattmontage und Kopfmontage
  • Barrierefreie Zugänge

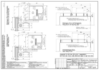
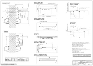
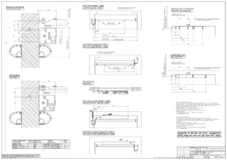
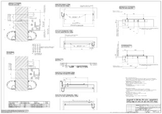
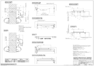
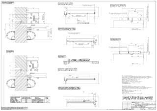
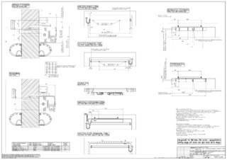
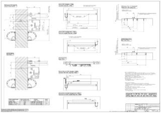
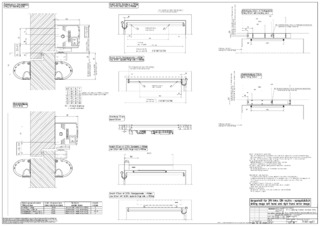
Technische Daten zum Produkt

Drehtürantriebssystem ECturn
Höhe 60 mm
Breite 580 mm
Tiefe 60 mm
Flügelgewicht (max.) 1-flügelig 125 kg
Flügelbreite (min.-max.) 650 mm - 1100 mm
Leibungstiefe (max.) 200 mm
Türüberschlag (max.) 50 mm
Antriebstyp Elektromechanisch
Öffnungswinkel (max.) 110 °
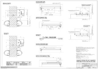
DIN links Ja
DIN rechts Ja
Kopfmontage Bandgegenseite mit Gestänge Ja
Kopfmontage Bandgegenseite mit Gleitschiene Ja
Kopfmontage Bandseite mit Gleitschiene Ja
Kopfmontage Bandgegenseite mit Gleitschiene an Ganzglastüren Ja
Kopfmontage Bandseite mit Gleitschiene an Ganzglastüren Ja
Türblattmontage Bandgegenseite mit Gleitschiene Ja
Türblattmontage Bandseite mit Gleitschiene Ja
Türblattmontage Bandseite mit Gestänge Ja
Elektrischer Endschlag Ja
Netztrennung Hauptschalter im Antrieb
Ansteuerverzögerung (max.) 10 s
Betriebsspannung 110 – 230 V
Nennleistung 75 W
Stromversorgung für externe Verbraucher (24 V DC) 600 mA
Betriebstemperatur -15 - 50 °C
Schutzart IP20
Betriebsart Aus, Automatik, Daueroffen, Nacht
Funktionsart Vollautomat
Funktion Automatik Ja
Funktion Low-Energy Ja
Funktion Tasten Ja
Hinderniserkennung Ja
Automatische Reversierung Ja
Push & Go einstellbar
Bedienung Programmschalter TPS, Programmschalter im Antrieb integriert
Parametrierung Programmschalter DPS, Steuerung
Normkonformität EN 16005

Downloads

Kontakt

Wir helfen Ihnen gern +49-7152-203-0 Mo – Do: 7.30 – 17.00 Uhr /Fr: 7.30 – 16.00 Uhr Architektenhotline +49-7152-203-112 Mo – Do: 9.00- 16.00 Uhr / Fr: 9.00 – 15.00 Uhr Service Hotline +49-1802-923392 (0,06 € / Anruf aus dem Festnetz, Mobilfunk max. 0,42 €)