Levolan

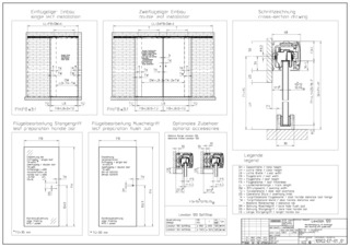
Levolan 120 Glas Deckenbefestigung versenkt Schiebebeschlag für 120 kg schwere Glasflügel und versenkte Deckenbefestigung

Rollenschiebebeschläge Levolan 120 Schlankes Design mit integrierter Beschlagtechnik
  • Design-Schiebebeschlag für Glastüren mit ESG 10 bis 12 mm sowie VSG bis 12,76 mm und bis 120 kg Flügelgewicht
  • Schlankes Design mit integrierter Beschlagtechnik
  • Komplett im Laufprofil integriert
  • Mit dem Levolan Smart fix Montagesystem wird der Einsatz von Montagewerkzeug auf ein Minimum reduziert - für einen schnellen und bequemen Einbau
  • Endmontage des Beschlags durch einfaches Clipsen
  • Mit ein- oder beidseitiger Dämpfung für Türen bis zu 60 kg Flügelgewicht, sodass die Tür sanft abgebremst und selbstständig in die Endlage gezogen wird
Mehr anzeigen
  • Nach DIN EN 1527 in 100.000 Prüfzyklen auf Langlebigkeit geprüft
  • Abdeckprofile für den Deckeneinbau ermöglichen eleganten Abschluss zwischen Deckenöffung und Beschlag
Kontaktieren Sie uns

Anwendungsbereiche

  • Für designorientierte Schiebetüren im Innenbereich von Wohn- und Büroräumen
  • Für alle ein- und mehrflügeligen Schiebetüren
  • Befestigung an der Decke im versenkten Einbau
  • Für die Befestigung an Wand und Decke (direkt und verdeckt liegend) sowie Glasbefestigung
  • Mit Levolan 120 SoftStop ein- oder beidseitig gedämpft
  • Durch die Laufruhe mit Levolan 120 SoftStop insbesondere für Türen im Wohn- und Bürobereich geeignet

Technische Daten zum Produkt

Levolan 120 Glas Deckenbefestigung versenkt
Flügelmaterial Glas
Flügelgewicht (max.) 120 kg
Flügelanzahl 1-flügelig, 2-flügelig
Flügelhöhe (max.) 3500 mm
Flügelstärke ab 10 mm
Flügelstärke bis 12 mm
Geometrie Laufschienenprofil gerade
Montageart Decke versenkt
Einzugsdämpfung optional

Downloads

Kontakt

Wir helfen Ihnen gern +49-7152-203-0 Mo – Do: 7.30 – 17.00 Uhr /Fr: 7.30 – 16.00 Uhr Architektenhotline +49-7152-203-112 Mo – Do: 9.00- 16.00 Uhr / Fr: 9.00 – 15.00 Uhr Service Hotline +49-1802-923392 (0,06 € / Anruf aus dem Festnetz, Mobilfunk max. 0,42 €)