Öffnungsantriebe

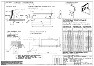
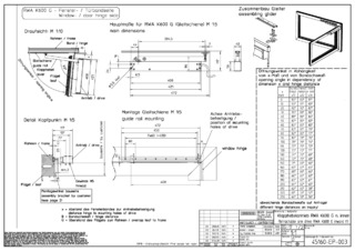
RWA K 600 G Klapphebelantrieb zur Montage an Fenstern und Türen mit fester Anbindung mittels Gleitschiene

RWA K 600 G Klapphebelantrieb Kann sowohl an Türen als auch an Fenstern eingesetzt werden. Durch die feste Anbindung des Antriebs mittels Gleitschiene an einen Türflügel ist die Tür nicht frei begehbar.
  • 90° Fensteröffnung in weniger als 60 Sekunden
  • Starker Antrieb mit hohem Drehmoment
  • Anschlusskabel mittels Stecker einfach austauschbar
  • Integrierter Meldekontakt für Rückmeldungen
  • Integriertes Syncro-Modul das max. zwei Antriebe ohne externes Steuergerät betreiben kann
  • Geprüft als Natürliches Rauch- und Wärmeabzugsgerät (NRWG) nach EN 12101-2
Kontaktieren Sie uns

Anwendungsbereiche

  • RWA und natürliche Lüftung (24 V)
  • Einwärts und auswärts öffnende Fenster mit Kipp-, Klapp- und Drehflügeln
  • Montage an Holz-, Kunststoff- oder Metallfenstern
  • Flügel- und Rahmenmontage
  • Montage an der Tür möglich

Technische Daten zum Produkt

RWA K 600 G
Abmessungen 421 x 40 x 86 mm
Gehäusematerial Aluminium
Zuhaltekraft (max.) 3000 N
Druckkraft 600 N
Zugkraft 600 N
Spannung im Betrieb 24 V ± 25 %
Betriebsspannung 24 V DC
Stromaufnahme 1.4 A
Restwelligkeit 20 %
Einschaltdauer 30 %
Anschlusskabel Länge 5 m
Sonderlänge Anschlusskabel 10 m
Min. Aderquerschnitt 0.5 mm²
Anzahl der Adern 5 Adern
Betriebstemperatur -5 - 75 °C
Schutzart IP32
Schutzklasse III
Syncro-Funktion Ja
Öffnungsgeschwindigkeit einstellbar (Lüftung) Ja
Zusätzliche Verriegelung erhältlich Ja
Art der Zusatzverriegelung Verriegelungsantrieb
Art der Hubverkürzung Einstellgerät
Endlagenabschaltung ausgefahren Interner Weggeber
Endlagenabschaltung eingefahren Interner Weggeber
Überlastabschaltung Ja
NRWG geprüft Ja
Anzahl Synchronisierung Antriebe 2
Kippfenster EINWÄRTS Rahmenmontage Ja
Kippfenster EINWÄRTS Flügelmontage Ja
Kippfenster AUSWÄRTS Rahmenmontage Ja
Kippfenster AUSWÄRTS Flügelmontage Ja
Drehfenster EINWÄRTS Rahmenmontage Ja
Drehfenster EINWÄRTS Flügelmontage Ja
Drehfenster AUSWÄRTS Rahmenmontage Ja
Drehfenster AUSWÄRTS Flügelmontage Ja
Klappfenster EINWÄRTS Rahmenmontage Ja
Klappfenster EINWÄRTS Flügelmontage Ja
Klappfenster AUSWÄRTS Rahmenmontage Ja
Klappfenster AUSWÄRTS Flügelmontage Ja

Downloads

Varianten & Zubehör

Kontakt

Wir helfen Ihnen gern +49-7152-203-0 Mo – Do: 7.30 – 17.00 Uhr /Fr: 7.30 – 16.00 Uhr Architektenhotline +49-7152-203-112 Mo – Do: 9.00- 16.00 Uhr / Fr: 9.00 – 15.00 Uhr Service Hotline +49-1802-923392 (0,06 € / Anruf aus dem Festnetz, Mobilfunk max. 0,42 €)