Drehtürantriebssystem ECturn Elektromechanisches Drehtürantriebssystem für barrierefreie einflügelige Türen bis 125 kg
- Öffnungs- und Schließgeschwindigkeit kann individuell angepasst werden
- Elektrischer Endschlag, der die Tür kurz vor Geschlossenlage beschleunigt
- Low-Energy-Funktion öffnet und schließt die Tür mit reduzierter Fahrgeschwindigkeit und erfüllt damit höchste Sicherheitsanforderungen
- Hinderniserkennung bemerkt ein Hindernis durch Berührung und stoppt den Öffnungs- oder Schließvorgang
- Automatische Reversierung erkennt ein Hindernis und kehrt zurück in die Öffnungsposition
- Push & Go-Funktion löst nach leichtem manuellen Druck auf das Türblatt die Antriebsautomatik aus
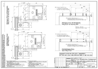
- Antrieb kann mit Gleitschiene oder Gestänge verwendet werden
- Glasgleitschiene erhältlich zur Verwendung an Glastüren mit einer Glasstärke von 8-10 mm
- Optionaler Akku sorgt bei Stromausfall für maximale Sicherheit
- Optionale Funkempfangsplatine für kabellose Ansteuerung per Funksender
Anwendungsbereiche
- Einflügelige rechte und linke Anschlagtüren
- Anschlagtüren bis 1100 mm Flügelbreite oder 125 kg Gewicht
- Eingangs- und Innentüren mit mäßiger Begehfrequenz
- Automatisierung rahmenloser Ganzglastüren
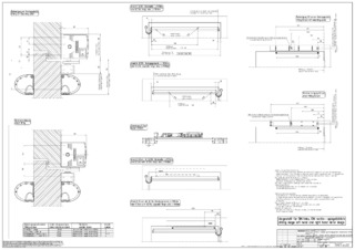
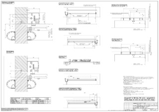
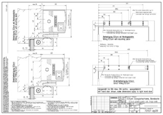
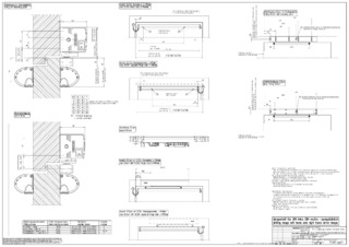
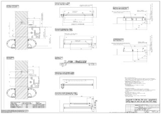
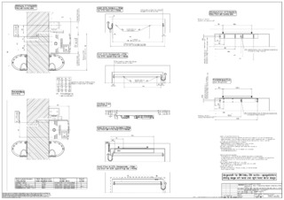
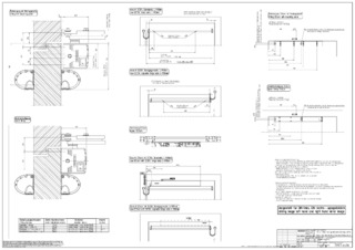
- Türblattmontage und Kopfmontage
- Barrierefreie Zugänge
Technische Daten zum Produkt
Drehtürantriebssystem ECturn | |
Höhe | 60 mm |
Breite | 580 mm |
Tiefe | 60 mm |
Flügelgewicht (max.) 1-flügelig | 125 kg |
Flügelbreite (min.-max.) | 650 mm - 1100 mm |
Leibungstiefe (max.) | 200 mm |
Türüberschlag (max.) | 50 mm |
Antriebstyp | Elektromechanisch |
Öffnungswinkel (max.) | 110 ° |
DIN links | Ja |
DIN rechts | Ja |
Kopfmontage Bandgegenseite mit Gestänge | Ja |
Kopfmontage Bandgegenseite mit Gleitschiene | Ja |
Kopfmontage Bandseite mit Gleitschiene | Ja |
Kopfmontage Bandgegenseite mit Gleitschiene an Ganzglastüren | Ja |
Kopfmontage Bandseite mit Gleitschiene an Ganzglastüren | Ja |
Türblattmontage Bandgegenseite mit Gleitschiene | Ja |
Türblattmontage Bandseite mit Gleitschiene | Ja |
Türblattmontage Bandseite mit Gestänge | Ja |
Elektrischer Endschlag | Ja |
Netztrennung | Hauptschalter im Antrieb |
Ansteuerverzögerung (max.) | 10 s |
Betriebsspannung | 110 – 230 V |
Nennleistung | 75 W |
Stromversorgung für externe Verbraucher (24 V DC) | 600 mA |
Betriebstemperatur | -15 - 50 °C |
Schutzart | IP20 |
Betriebsart | Aus, Automatik, Daueroffen, Nacht |
Funktionsart | Vollautomat |
Funktion Automatik | Ja |
Funktion Low-Energy | Ja |
Funktion Tasten | Ja |
Hinderniserkennung | Ja |
Automatische Reversierung | Ja |
Push & Go | einstellbar |
Bedienung | Programmschalter TPS, Programmschalter im Antrieb integriert |
Parametrierung | Programmschalter DPS, Steuerung |
Normkonformität | EN 16005 |
Downloads
KENNZEICHNUNGSPFLICHT: © Studio BE / GEZE GmbH
KENNZEICHNUNGSPFLICHT: © Studio BE / GEZE GmbH
KENNZEICHNUNGSPFLICHT: © Studio BE / GEZE GmbH
KENNZEICHNUNGSPFLICHT: © Studio BE / GEZE GmbH
KENNZEICHNUNGSPFLICHT: © GEZE GmbH
KENNZEICHNUNGSPFLICHT: © GEZE GmbH
KENNZEICHNUNGSPFLICHT: © GEZE GmbH