Hier finden Sie alle wichtigen Informationen als Download.
Detailaufnahme oberes Drehlager mit ausdrehbarem Achslagerbolzen an einer Ganzglastür. © GEZE GmbH
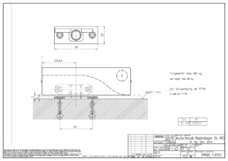
Oberes Drehlager mit ausdrehbarem Achslagerbolzen © GEZE GmbH
Mit der regelmäßigen Wartung sichern wir die Funktionalität und den Werterhalt Ihrer Anlagen.
Finden Sie schnell und umkompliziert den passenden Händler für Ihre GEZE Produkte.
Wir bieten ein umfassendes Qualifizierungsprogramm zu GEZE Produkten und aktuellen Fachthemen.
Wir führen ein vollständiges Programm an Original-Ersatzteilen auch für ältere Anlagen.
Bitte treffen Sie eine Auswahl
* Pflichtfeld
Danke für Ihre Nachricht, wir werden uns umgehend kümmern! Sie erhalten eine Kopie Ihrer Anfrage an Ihre Emailadresse.
Serverfehler! Bitte versuchen Sie erneut.