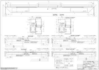
Gleitschiene 2-flügelig

TS 5000 R-ISM/0 ECline Gleitschienentürschließersystem für zweiflügelige Türen mit integrierter Schließfolgeregelung und Rauchschalter ohne elektrische Feststellung

Türschließersystem TS 5000 R-ISM/0 SoftClose / ECline mit HM Gleitschienentürschließersystem für zweiflügelige Türen mit Schließfolgeregelung, Rauchschalter und mit integrierter Öffnungsdämpfung, welche stark aufgeworfene Türen abbremst.
  • System aus zwei Türschließern TS 5000 ECline, R-ISM/0 Gleitschiene ohne elektrische Feststellung
  • Stufenlos einstellbare Schließkraft von EN3-5
  • Betriebsspannung 230 V AC
  • Für rechts und links angeschlagene Türen ohne Umstellung verwendbar
  • Schließfolgeregelung hält den Gangflügel in Warteposition bis der Standflügel geschlossen ist
  • Integrierte Rauchschalterzentrale, deren Signal im Brandfall die Tür selbstständig schließt
Mehr anzeigen
  • Rauchschalter mit Verschmutzungsanzeige und Alarmschwellennachführung
  • Zusätzliche Rauchmelder anschließbar
  • Hydraulischer Endschlag, der die Tür kurz vor Geschlossenlage beschleunigt
  • Schließgeschwindigkeit kann individuell angepasst werden
  • Integrierte Öffnungsdämpfung, bremst stark aufgeworfene Türen ab
  • Optische Schließkraftanzeige zum leichten Kontrollieren der Einstellung
  • Alle Funktionen von vorn einstellbar
Kontaktieren Sie uns

Anwendungsbereiche

  • Feuer- und Rauchschutztüren
  • Zweiflügelige rechte und linke Anschlagtüren
  • Symmetrische und asymmetrische Türteilung möglich
  • Anschlagtüren bis 2500 mm Bandabstand
  • Minimaler Bandabstand 1500 mm, minimale Breite des Gangflügels 875 mm und des Standflügels 400 mm
  • Feststellanlagen mit Haftmagnet (als Zubehör) und Rauchschalter (integriert in Gleitschiene)
  • Türblattmontage Bandseite

Technische Daten zum Produkt

TS 5000 R-ISM/0 ECline
Schließkraft nach EN 1154 EN 3 - 5
Barrierefrei nach DIN 18040 bis Flügelbreite (max.) in mm 1250 mm
Flügelbreite (max.) 1250 mm
Montageart Türblattmontage Bandseite
Öffnungswinkel (max.) 180 °
Eingangsspannung 230 V AC
Frequenz Versorgungsspannung 50 Hz
Minimaler Bandabstand 1500 mm
Minimale Standflügelbreite 400 mm
Eignung Brandschutztüren Ja
Schließkraft einstellbar Ja, stufenlos
Schließgeschwindigkeit einstellbar Ja
Endschlag einstellbar Ja, über Ventil
Öffnungsdämpfung integriert Ja, hydraulisch einstellbar
Position Schließkraftverstellung Vorn
Optische Schließkraftanzeige Ja
Feststellung Elektrisch
Feststellung am Gangflügel / Standflügel Optional / Optional
Feststellbereich 180 °
Rauchschalter integriert Ja
Schließfolgeregelung integriert Ja

Downloads

Varianten & Zubehör

Kontakt

Wir helfen Ihnen gern +49-7152-203-0 Mo – Do: 7.30 – 17.00 Uhr /Fr: 7.30 – 16.00 Uhr Architektenhotline +49-7152-203-112 Mo – Do: 9.00- 16.00 Uhr / Fr: 9.00 – 15.00 Uhr Service Hotline +49-1802-923392 (0,06 € / Anruf aus dem Festnetz, Mobilfunk max. 0,42 €)