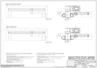
Drehtürantriebssystem Slimdrive EMD 1-flg. Elektromechanisches Drehtürantriebssystem für einflügelige Anschlagtüren
- Öffnungs- und Schließgeschwindigkeit kann individuell angepasst werden
- Elektrischer Endschlag, der die Tür kurz vor Geschlossenlage beschleunigt
- Low-Energy-Funktion öffnet und schließt die Tür mit reduzierter Fahrgeschwindigkeit und erfüllt damit höchste Sicherheitsanforderungen
- Windfang-Funktion regelt das Öffnen und Schließen von zwei hintereinander liegenden Türen (Schleuse)
- Hinderniserkennung bemerkt ein Hindernis durch Berührung und stoppt den Öffnungs- oder Schließvorgang
- Automatische Reversierung erkennt ein Hindernis und kehrt zurück in die Öffnungsposition
- Push & Go-Funktion löst nach leichtem manuellen Druck auf das Türblatt die Antriebsautomatik aus
- Antrieb kann mit Rollenschiene oder Gestänge verwendet werden
Anwendungsbereiche
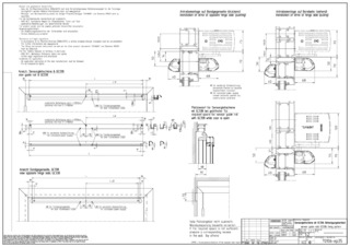
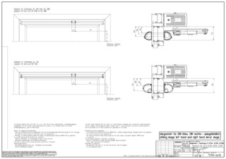
- Einflügelige rechte und linke Anschlagtüren
- Anschlagtüren bis 1400 mm Flügelbreite oder 180 kg Gewicht
- Innen- und Außentüren mit hoher Begehfrequenz
- Türblattmontage und Kopfmontage
Konfigurationsvarianten
- Slimdrive EMD
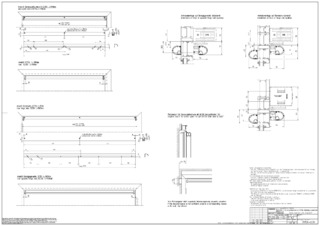
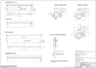
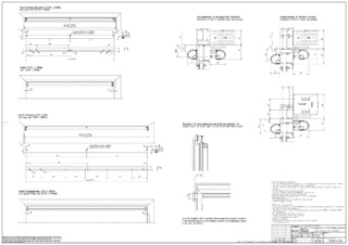
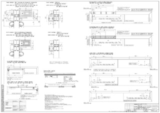
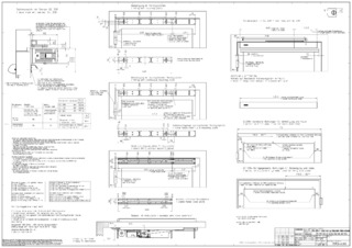
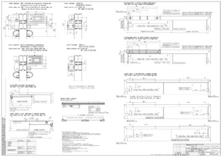
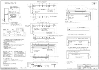
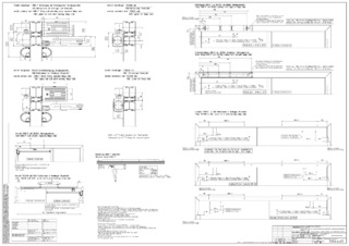
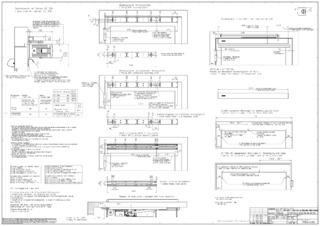
Technische Daten zum Produkt
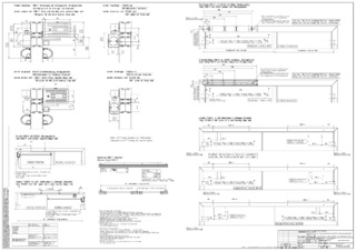
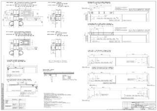
| Drehtürantriebssystem Slimdrive EMD 1-flg. | |
| Höhe | 70 mm |
| Tiefe | 121 mm |
| Flügelgewicht (max.) 1-flügelig | 180 kg |
| Bandmaß (min.-max.) 2-flügelig | 1500 mm - 2800 mm |
| Flügelbreite (min.-max.) | 750 mm - 1400 mm |
| Leibungstiefe (max.) | 400 mm |
| Türüberschlag (max.) | 30 mm |
| Antriebstyp | Elektromechanisch |
| Öffnungswinkel (max.) | 130 ° |
| DIN links | Ja |
| DIN rechts | Ja |
| Kopfmontage Bandgegenseite mit Gestänge | Ja |
| Kopfmontage Bandgegenseite mit Rollenschiene | Ja |
| Kopfmontage Bandseite mit Rollenschiene | Ja |
| Türblattmontage Bandseite mit Rollenschiene | Ja |
| Elektrischer Endschlag | Ja |
| Elektrische Schließfolgeregelung | Ja |
| Netztrennung | Hauptschalter im Antrieb |
| Ansteuerverzögerung (max.) | 20 s |
| Betriebsspannung | 230 V |
| Nennleistung | 230 W |
| Stromversorgung für externe Verbraucher (24 V DC) | 1000 mA |
| Betriebstemperatur | -15 - 50 °C |
| Schutzart | IP20 |
| Betriebsart | Aus, Automatik, Daueroffen, Ladenschluss, Nacht |
| Funktionsart | Vollautomat |
| Funktion Automatik | Ja |
| Funktion Low-Energy | Ja |
| Funktion Tasten | Ja |
| Windfangfunktion | Ja |
| Hinderniserkennung | Ja |
| Automatische Reversierung | Ja |
| Push & Go | einstellbar |
| Bedienung | Programmschalter DPS, Programmschalter im Antrieb integriert |
| Parametrierung | GEZEconnects (PC + Bluetooth), Serviceterminal ST 220, Programmschalter DPS |
| Normkonformität | DIN 18650, EN 16005 |
Downloads
KENNZEICHNUNGSPFLICHT: © GEZE GmbH
KENNZEICHNUNGSPFLICHT: © GEZE GmbH
KENNZEICHNUNGSPFLICHT: © Stefan Dauth / GEZE GmbH
KENNZEICHNUNGSPFLICHT: © Oliver Look / GEZE GmbH
KENNZEICHNUNGSPFLICHT: © Oliver Look / GEZE GmbH
KENNZEICHNUNGSPFLICHT: © Oliver Look / GEZE GmbH