TS 5000 L-ISM ECline Gleitschienentürschließersystem für barrierefreie, leicht öffnende zweiflügelige Türen bis 1250 mm Flügelbreite nach DIN 18040 mit integrierter Schließfolgeregelung
- System mit zwei Türschließern TS 5000 ECline und ISM Gleitschiene BG
- Barrierefrei nach DIN 18040 bis EN 5 (1250 mm Flügelbreite)
- Stufenlos einstellbare Schließkraft von EN 3-5
- Für rechts und links angeschlagene Türen ohne Umstellung verwendbar
- Schließfolgeregelung hält den Gangflügel in Warteposition bis der Standflügel geschlossen ist
- Hydraulischer Endschlag, der die Tür kurz vor Geschlossenlage beschleunigt
- Schließgeschwindigkeit kann individuell angepasst werden
- Integrierte Öffnungsdämpfung, bremst stark aufgeworfene Türen ab
- Optische Schließkraftanzeige zum leichten Kontrollieren der Einstellung
- Alle Funktionen von vorn einstellbar und kein höherer Montageaufwand gegenüber Standardsystemen
Anwendungsbereiche
- Feuer- und Rauchschutztüren
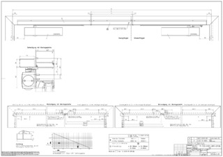
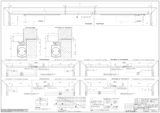
- Zweiflügelige rechte und linke Anschlagtüren
- Symmetrische und asymmetrische Türteilung möglich
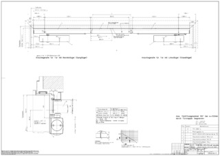
- Anschlagtüren bis 2500 mm Bandabstand und 1250 mm Flügelbreite
- Minimaler Bandabstand 1300 mm, minimale Breite des Standflügels 400 mm
- Türblattmontage Bandgegenseite
- Barrierefreie Zugänge nach DIN 18040 bis EN 5
Technische Daten zum Produkt
| TS 5000 L-ISM ECline | |
| Barrierefrei nach DIN 18040 bis Flügelbreite (max.) in mm | 1250 mm |
| Flügelbreite (max.) | 1250 mm |
| Montageart | Türblattmontage Bandgegenseite |
| Öffnungswinkel (max.) | 130 ° |
| Minimaler Bandabstand | 1360 mm |
| Minimale Standflügelbreite | 380 mm |
| Eignung Brandschutztüren | Ja |
| Schließkraft einstellbar | Ja, stufenlos |
| Schließgeschwindigkeit einstellbar | Ja |
| Endschlag einstellbar | Ja, über Ventil |
| Öffnungsdämpfung integriert | Ja, hydraulisch einstellbar |
| Position Schließkraftverstellung | Vorn |
| Optische Schließkraftanzeige | Ja |
| Feststellung | Optional |
| Schließfolgeregelung integriert | Ja |