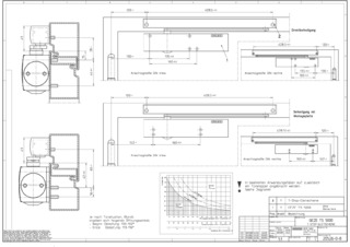
Guide rail 1-leaf
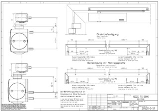
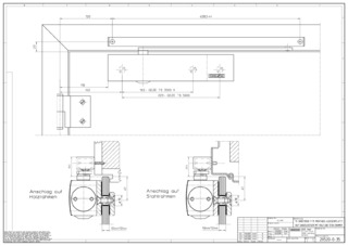
TS 5000 Overhead door closer with guide rail for single leaf doors with a leaf width up to 1400 mm
- Closing force of EN 2-6 with variable adjustment
- Can be used for right and left hand doors without conversion
- Hydraulic latching action which accelerates the door shortly before it is closed
- Closing speed can be individually adjusted
- Integrated back check, slows down doors that are thrown open forcefully
- Visual closing force display for easy control of the setting
This overhead door closer for single leaf doors represents clear lines. It is authorised for installation on fire and smoke protection doors.
Application Areas
- Fire and smoke protection doors
- Right and left single-action doors
- Single-action doors up to 1400 mm leaf width
- Door leaf installation hinge side and transom installation opposite hinge side
Installation situations in reference objects and videos
Technical data
| TS 5000 | |
| Closing force in accordance with EN 1154 | EN 2 - 6 |
| Barrier-free in accordance with DIN 18040 up to leaf width (max.) in mm | 1100 mm |
| Leaf width (max.) | 1400 mm |
| Type of installation | Door leaf installation hinge side, Transom installation opposite hinge side |
| Opening angle (max.) | 180 ° |
| Suitability for fire protection doors | Yes |
| Closing force adjustable | Yes, stepless |
| Adjustable closing speed | Yes |
| Latching action adjustable | Yes, via valve |
| Back check integrated | Yes, hydraulically adjustable |
| Position of closing force adjustment | Front |
| Visual closing force display | Yes |
| Hold-open function | Optional |
Downloads
TS 5000 door closer
LABELLING OBLIGATION:
© GEZE GmbH
Door closer TS 5000, vertically adjustable guide rail
LABELLING OBLIGATION:
© GEZE GmbH
TS 5000 door closer
LABELLING OBLIGATION:
© GEZE GmbH
Access solution with TS 5000, TSA 160 NT IS / TS and RWA K 600 T at the Milaneo Stuttgart
LABELLING OBLIGATION:
© Jürgen Pollak / GEZE GmbH
Door closer TS 5000 in the entrance hall of Sports Hall in Zadar, Croatia.
LABELLING OBLIGATION:
© Robert Les / GEZE GmbH
Door closer TS 5000 in the entrance hall of Sports Hall in Zadar, Croatia.
LABELLING OBLIGATION:
© Robert Les / GEZE GmbH
Door closer TS 5000 in the retirement home in Bad Lippspringe.
LABELLING OBLIGATION:
© Martin Jakob / GEZE GmbH
Door closer TS 5000 installed at Sports Hall in Zadar, Croatia.
LABELLING OBLIGATION:
© Robert Les / GEZE GmbH
Door closer TS 5000 installed at the company building near vector, Stuttgart.
LABELLING OBLIGATION:
© Dirk Wilhelmy / GEZE GmbH
Door closer TS 5000 installed at the entrance hall of Sports Hall in Zadar, Croatia.
LABELLING OBLIGATION:
© Robert Les / GEZE GmbH
Door closer TS 5000 installed at the Rheinlandhaus in Cologne.
LABELLING OBLIGATION:
© Lothar Wels / GEZE GmbH
Door closer TS 5000 on an exterior door to the inner courtyard of the Kö-Bogen II
LABELLING OBLIGATION:
© Jürgen Biniasch / GEZE GmbH
Door closer TS 5000 with T-Stop guide rail
LABELLING OBLIGATION:
© Dirk Wilhelmy / GEZE GmbH
Door closer TS 5000, EnBW Biberach
LABELLING OBLIGATION:
© Nikolaus Grünwald / GEZE GmbH
Door closer TS 5000, installed in the Textile and Industrial Museum in Augsburg.
LABELLING OBLIGATION:
© Dirk Wilhelmy / GEZE GmbH
Door closer TS 5000, Integra care homes, Ronnenberg
LABELLING OBLIGATION:
© Lothar Wels / GEZE GmbH
Door closer TS 5000, Munich vocational school centre
LABELLING OBLIGATION:
© Robert Sprang / GEZE GmbH
Entrance vocational school centre with swing doors and emergency exit
LABELLING OBLIGATION:
© Robert Sprang / GEZE GmbH
Overhead door closer TS 5000, installed at Sports Hall in Zadar, Croatia.
LABELLING OBLIGATION:
© Robert Les / GEZE GmbH
Overhead door closer with guide rail - TS 5000 and swing door drive/door closer - TSA 160 NT IS/TS, Milaneo
LABELLING OBLIGATION:
© Jürgen Pollak / GEZE GmbH
Overhead door closer with guide rail - TS 5000 and swing door drive/door closer - TSA 160 NT IS/TS, Milaneo
LABELLING OBLIGATION:
© Jürgen Pollak / GEZE GmbH
Panorama restaurant on the summit of the Zugspitze
LABELLING OBLIGATION:
© Robert Sprang / GEZE GmbH
TS 5000 + OL 90 N post-frame transmission, Augustinum
LABELLING OBLIGATION:
© Dirk Wilhelmy / GEZE GmbH
TS 5000 door closer, installed at the Generali company building in Cologne.
LABELLING OBLIGATION:
© Lothar Wels / GEZE GmbH
Variants & Accessories
Contact
We would be happy to assist you
+49-7152-203-0
Mo–Thu: 7.30 a.m. – 5 p.m. / Fri: 7.30 a.m. – 4 p.m
Hotline for architects
+49-7152-203-112
Mo-Thu: 9:00 a.m. - 4:00 p.m. / Fri: 9:00 a.m. - 3:00 p.m.
Service Hotline
+49-1802-923392
(0.06 € / Calling from landline, mobile telephony max. 0.42 €)