Powerturn
Powerturn 1-leaf swing door drive system Electromechanical swing door drive system for single leaf doors up to 600 kg
- Smart swing function for easy manual door opening
- Closing force of EN 4-7 with variable adjustment
- Opening and closing speed can be individually adjusted
- Mechanical latching action when operated without current, and electrical automatic unit latching action in regular operation, which accelerates the door shortly before it is closed
- Low-energy function opens and closes the door with reduced speed, fulfilling the highest safety demands
- Servo function for motorized support when manually opening the door
- Vestibule function controls the opening and closing of two consecutive doors (interlocking door system)
- Obstacle detection detects an object through contact and stops the opening or closing process
- Automatic reversing detects an obstacle and returns to the opening position
- Push & Go function triggers the automatic drive following light manual pressure on the door leaf
- Drive can be used with roller guide rail or link arm
- Optional radio reception board for wireless activation by radio transmitter
- Hold-open function can be activated by manually pulling the door leaf closed
- Reset of the hold-open system by manually opening the door leaf to an opening angle of 80° or changing the mode of operation
Application Areas
- Single-action, single leaf, right and left closing doors
- Single-action doors up to 1600 mm leaf width or 600 kg weight
- Minimum leaf width 800 mm
- Interior and exterior doors with high access frequency
- Door leaf installation and transom installation
Configuration Variants
- Powerturn
- Powerturn F
- Powerturn F/R
Installation situations in reference objects and videos
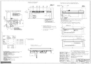
Technical data
| Powerturn 1-leaf swing door drive system | |
| Height | 70 mm |
| Depth | 130 mm |
| Length min. | 720 mm |
| Leaf weight (max.) 1-leaf | 600 kg |
| Distance centre door hinge-drive axis (min.-max.) 2-leaf, link arm | 1600 mm - 3200 mm |
| Distance centre door hinge-drive axis (min.-max.) 2-leaf, roller guide rail | 1600 mm - 3200 mm |
| Leaf width (min.-max.) | 800 mm - 1600 mm |
| Reveal depth (max.) | 560 mm |
| Drive type | Electromechanical |
| Opening angle (max.) | 136 ° |
| Spring pre-load | EN 4 - EN 7 |
| DIN left | Yes |
| DIN right | Yes |
| Transom installation opposite hinge side with link arm | Yes |
| Transom installation opposite hinge side with roller guide rail | Yes |
| Transom installation hinge side with roller guide rail | Yes |
| Door leaf installation opposite hinge side with roller guide rail | Yes |
| Door leaf installation hinge side with roller guide rail | Yes |
| Door leaf installation hinge side with link arm | Yes |
| Mechanical latching action | Yes |
| Electrical latching action | Yes |
| Disconnection from mains | Main switch in the drive |
| Activation delay (max.) | 10 s |
| Operating voltage | 230 V |
| Power rating | 200 W |
| Power supply for external consumers (24 V DC) | 1200 mA |
| Service temperature | -15 - 50 °C |
| IP rating | IP30 |
| Mode of operation | Automatic, Permanently open, Shop closing, Night, Off |
| Type of function | Fully automatic |
| Automatic function | Yes |
| Low-energy function | Yes |
| function smart swing | Yes |
| Servo function | Yes |
| Key function | Yes |
| Obstacle detection | Yes |
| Automatic reversing | Yes |
| Push & Go | adjustable |
| Operation | Programme switch DPS, MPS programme switch, Programme switch integrated in the drive |
| Parameter setting | GEZEconnects (PC + Bluetooth), Service terminal ST 220, Programme switch DPS |
| Standard conformity | DIN EN 16005 |
| Smoke switch integrated | Yes |
Downloads
Powerturn
LABELLING OBLIGATION:
© GEZE GmbH
Powerturn Drive
LABELLING OBLIGATION:
© GEZE GmbH
Powerturn with link arm
LABELLING OBLIGATION:
© GEZE GmbH
Powerturn
LABELLING OBLIGATION:
© GEZE GmbH
Powerturn
LABELLING OBLIGATION:
© GEZE GmbH
Powerturn
LABELLING OBLIGATION:
© GEZE GmbH
Powerturn
LABELLING OBLIGATION:
© GEZE GmbH
Powerturn
LABELLING OBLIGATION:
© GEZE GmbH
Powerturn
LABELLING OBLIGATION:
© GEZE GmbH
Powerturn
LABELLING OBLIGATION:
© GEZE GmbH
Powerturn
LABELLING OBLIGATION:
© GEZE GmbH
Powerturn
LABELLING OBLIGATION:
© GEZE GmbH
Powerturn
LABELLING OBLIGATION:
© GEZE GmbH
Powerturn
LABELLING OBLIGATION:
© GEZE GmbH
Powerturn
LABELLING OBLIGATION:
© GEZE GmbH
Powerturn
LABELLING OBLIGATION:
© GEZE GmbH
Powerturn
LABELLING OBLIGATION:
© GEZE GmbH
Powerturn roller guide rail
LABELLING OBLIGATION:
© GEZE GmbH
Opera House Dubai
LABELLING OBLIGATION:
© Nicolas Thome / GEZE GmbH
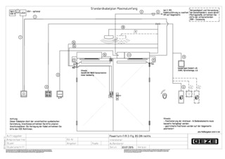
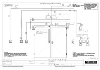
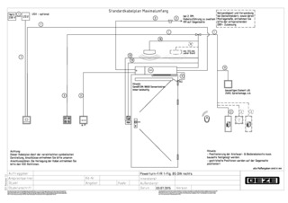
Powerturn Electromechanical swing door drive for doors up to 600 kg
LABELLING OBLIGATION:
© GEZE GmbH
Variants & Accessories
Contact
We would be happy to assist you
+49-7152-203-0
Mo–Thu: 7.30 a.m. – 5 p.m. / Fri: 7.30 a.m. – 4 p.m
Hotline for architects
+49-7152-203-112
Mo-Thu: 9:00 a.m. - 4:00 p.m. / Fri: 9:00 a.m. - 3:00 p.m.
Service Hotline
+49-1802-923392
(0.06 € / Calling from landline, mobile telephony max. 0.42 €)