OL 90 N
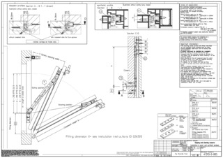
Gripping and cleaning scissors (FPS) For fanlight openers for additional protection of bottom-hung leaves
- Restricts motion of the leaf following unhinging of the scissor (gripping position)
- High safety due to multiple gripping positions
- Leaf and frame elements can be separated for improved transport and installation
- Two gripping and cleaning scissors are needed per window leaf
- Available in three sizes
Application Areas
- Can be used for OL 90 N, OL 95 and OL 320
- Vertically installed bottom-hung rectangular windows
Downloads
Gripping and cleaning scissor stay
LABELLING OBLIGATION:
© GEZE GmbH
Variants & Accessories
Contact
We would be happy to assist you
+49-7152-203-0
Mo–Thu: 7.30 a.m. – 5 p.m. / Fri: 7.30 a.m. – 4 p.m
Hotline for architects
+49-7152-203-112
Mo-Thu: 9:00 a.m. - 4:00 p.m. / Fri: 9:00 a.m. - 3:00 p.m.
Service Hotline
+49-1802-923392
(0.06 € / Calling from landline, mobile telephony max. 0.42 €)