Slimchain Chain drive in an attractive design with numerous possible applications in 24 V version
- Can be integrated perfectly into the façade design thanks to its slim and discreet look
- Continuously adjustable drive stroke and individual speeds for ventilation and smoke and heat extraction
- Available as special version - stroke, cable length, colour and alignment configurable to left hand/right hand door
- Synchronisation of max. four drives without external control unit
- DIP switches for changing the mode of operation (Solo and Syncro, master, slave)
- Fast and easy installation with the Smart fix installation system
- IQ windowdrive - intelligent drive control
- Tested as a natural smoke and heat exhaust ventilation device (SHEV) in accordance with EN 12101-2
Application Areas
- Smoke and heat extraction system and natural ventilation (24 V) in the façade area
- Can be used in exhaust air and air inlet systems
- Inward- and outward-opening windows with bottom-hung, top-hung and side-hung leaves
- Projected top hung and parallel opening windows
- Installation on wooden, PVC or metal windows
- Leaf, frame or integrated installation
- System solution in combination with the Power lock locking drive
Installation situations in reference objects and videos
Safety note
Falling window leaves can be a considerable risk to life and limb of persons in the vicinity. Therefore, the use of GEZE safety scissors is mandatory when using GEZE drives on bottom-hung windows.
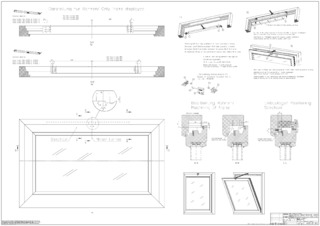
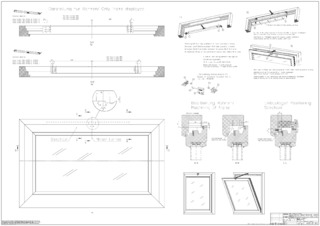
Technical data
| Slimchain | |
| Dimensions | 25 x 44 mm |
| Space needed on frame (min.) | Frame installation inward-opening: 40 mm, leaf installation inward-opening: 16/21 mm, frame installation outward-opening: 31 mm |
| Space requirement on leaf (min.) | Frame installation inward-opening: 40 mm, leaf installation inward-opening: 34/29 mm, frame installation outward-opening: 19 mm |
| Opening speed RWA | 15 mm/s |
| Opening speed ventilation | 5 mm/s |
| Closing speed (max.) | 5 mm/s |
| Force of pressure (max.) | 100 N (depending on stroke), see force-path chart |
| Locking force (max.) | 2000 N |
| Tensile force | 300 N |
| Leaf weight | 200 kg* |
| Overlap area | 0 - 23 mm (depending on the application and bracket set) |
| Voltage at operation | 24 V ± 25 % |
| Operating voltage | 24 V DC |
| Current consumption | 1.1 A |
| Current consumption according to area of application | Ventilation (24 V): 0.9 A; RWA (18 V): 1.1 A |
| Power consumption | 22 W |
| Duty rating | 30 % |
| Special length of connector cable | 5 m, 7.5 m |
| Min. core cross section | 0.75 mm² |
| Number of cores | 4 cores |
| Service temperature | -5 - 70 °C |
| IP rating | IP40 |
| protection rating | III |
| Syncro function | Yes |
| Adjustable opening speed (ventilation) | Yes |
| Additional locking available | Yes |
| Type of additional locking mechanism | Locking drive |
| Type of stroke shortening | Synchronising unit, Factory setting |
| End position cut-off extended | electronic, via internal path sensor |
| End position cut-off retracted | electronically via current consumption |
| Overload cut-off | Yes |
| Complete opening within 60 s | yes, including locking drive |
| NSHEV tested | Yes |
| NSHEV additional information | yes, including locking drive |
| Number synchronisation drive units | 4 |
| KNX ability | Yes |
| Bottom-hung window INWARD-opening frame installation | Yes |
| Bottom-hung window inward opening leaf installation | Yes |
| Bottom-hung window OUTWARD-opening frame installation | Yes |
| Side-hung window INWARD-opening frame installation | Yes |
| Side-hung window INWARD-opening door leaf installation | Yes |
| Side-hung window OUTWARD-opening frame installation | Yes |
| Top-hung window INWARD-opening frame installation | Yes |
| Top-hung window OUTWARD-opening frame installation | Yes |
| Projected top-hung window OUTWARD-opening frame installation | Yes |
| Parallel-opening window OUTWARD-opening frame installation | Yes |
Downloads
LABELLING OBLIGATION: © GEZE GmbH
LABELLING OBLIGATION: © Jürgen Biniasch / GEZE GmbH
LABELLING OBLIGATION: © Jürgen Biniasch / GEZE GmbH
LABELLING OBLIGATION: © Zweitse Korten / GEZE GmbH
LABELLING OBLIGATION: © GEZE GmbH
LABELLING OBLIGATION: © GEZE GmbH
LABELLING OBLIGATION: © GEZE GmbH
LABELLING OBLIGATION: © Zweitse Korten / GEZE GmbH
LABELLING OBLIGATION: © Zweitse Korten / GEZE GmbH
LABELLING OBLIGATION: © Jürgen Pollak / GEZE GmbH
LABELLING OBLIGATION: © Zweitse Korten / GEZE GmbH