Slimdrive EMD
Slimdrive EMD F-IS swing door drive system Electromechanical swing door system for double leaf fire and smoke protection doors with closing sequence control
- Closing force with variable adjustment of EN 4-6
- Opening and closing speed can be individually adjusted
- Mechanical latching action when operated without current, and electrical latching action in regular operation, which accelerates the door shortly before the closed position
- Mechanical and electrical closing sequence control holds the active leaf in the waiting position until the passive leaf is closed
- Low-energy function opens and closes the door with reduced speed, fulfilling the highest safety demands
- Servo function for motorized support when manually opening the door
- Vestibule function controls the opening and closing of two consecutive doors (interlocking door system)
- Obstacle detection detects an object through contact and stops the opening or closing process
- Automatic reversing detects an obstacle and returns to the opening position
- Push & Go function triggers the automatic drive following light manual pressure on the door leaf
- Drive can be used with roller guide rail or link arm
Application Areas
- Fire and smoke protection doors
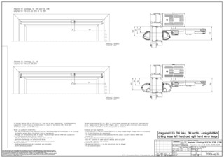
- Right and left double leaf single-action doors
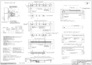
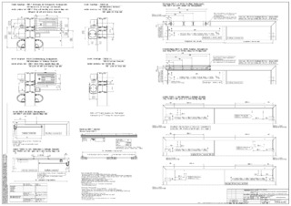
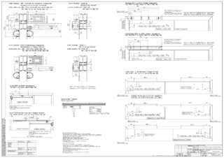
- Single-action doors up to 2800 mm hinge clearance, 1400 mm leaf width and 230 kg weight
- Minimum hinge clearance 1500 mm, minimum leaf width 750 mm
- Interior and exterior doors that must close in the correct sequence even without power
- Transom installation hinge and opposite hinge side
Configuration Variants
- Slimdrive EMD-F-IS
- Slimdrive EMD-F/R-IS
Installation situations in reference objects and videos
Technical data
| Slimdrive EMD F-IS swing door drive system | |
| Height | 70 mm |
| Depth | 121 mm |
| Leaf weight (max.) 1-leaf | 230 kg |
| Distance centre door hinge-drive axis (min.-max.) 2-leaf | 1500 mm - 2800 mm |
| Leaf width (min.-max.) | 750 mm - 1400 mm |
| Reveal depth (max.) | 400 mm |
| Door overlap (max.) | 30 mm |
| Drive type | Electromechanical |
| Opening angle (max.) | 130 ° |
| Spring pre-load | EN 4 - EN 6 |
| DIN left | Yes |
| DIN right | Yes |
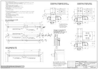
| Transom installation opposite hinge side with link arm | Yes |
| Transom installation opposite hinge side with roller guide rail | Yes |
| Transom installation hinge side with roller guide rail | Yes |
| Mechanical latching action | Yes |
| Electrical latching action | Yes |
| Electrical closing sequence control | Yes |
| Mechanical closing sequence control | Yes |
| Disconnection from mains | Main switch in the drive |
| Activation delay (max.) | 20 s |
| Operating voltage | 230 V |
| Power rating | 230 W |
| Power supply for external consumers (24 V DC) | 1000 mA |
| Service temperature | -15 - 50 °C |
| IP rating | IP20 |
| Mode of operation | Off, Automatic, Permanently open, Shop closing, Night |
| Type of function | Fully automatic |
| Automatic function | Yes |
| Low-energy function | Yes |
| Servo function | Yes |
| Key function | Yes |
| Vestibule function | Yes |
| Obstacle detection | Yes |
| Automatic reversing | Yes |
| Push & Go | adjustable |
| Operation | Programme switch DPS, Programme switch integrated in the drive |
| Parameter setting | GEZEconnects (PC + Bluetooth), Service terminal ST 220, Programme switch DPS |
| Standard conformity | DIN 18263-4, DIN 18650, EN 1158:1997/A1:2002/AC:2006, EN 16005 |
| Suitability for fire protection doors | Yes |
Downloads
Slimdrive EMD-F-IS
LABELLING OBLIGATION:
© GEZE GmbH
Automatic electric strike/ door closer Slimdrive EMD F-IS with TS 3000
LABELLING OBLIGATION:
© Lothar Wels / GEZE GmbH
Building design in harmony with fire protection and smoke and heat extraction system with Slimdrive EMD F-IS, Stuttgart
LABELLING OBLIGATION:
© GEZE GmbH
Club Coubertin in Munich equipped with Slimdrive EMD F-IS
LABELLING OBLIGATION:
© Robert Sprang / GEZE GmbH
Custom solution in the building of the Catholic Church
LABELLING OBLIGATION:
© Dirk Wilhelmy / GEZE GmbH
Slimdrive EMD F-IS in combination with guide rail + GC 334 in the care homes Zamenhof, Stuttgart
LABELLING OBLIGATION:
© Dirk Wilhelmy / GEZE GmbH
Slimdrive EMD F-IS with closing sequence control
LABELLING OBLIGATION:
© Jürgen Pollak / GEZE GmbH
Swing door drive - Slimdrive EMD F-IS for fire protection and smoke and heat extraction, Stuttgart
LABELLING OBLIGATION:
© GEZE GmbH
Variants & Accessories
Contact
We would be happy to assist you
+49-7152-203-0
Mo–Thu: 7.30 a.m. – 5 p.m. / Fri: 7.30 a.m. – 4 p.m
Hotline for architects
+49-7152-203-112
Mo-Thu: 9:00 a.m. - 4:00 p.m. / Fri: 9:00 a.m. - 3:00 p.m.
Service Hotline
+49-1802-923392
(0.06 € / Calling from landline, mobile telephony max. 0.42 €)