E 212 24 V

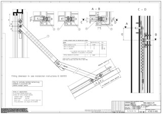
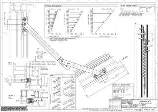
Safety scissors no. 35 For protection of bottom-hung leaves

Safety scissors no. 35 Provides a permanent link between the leaf and the frame
  • Facilitate a fixed connection between the window frame and leaf
  • Can be used from a leaf height of 300 mm
  • Depending on the leaf height and the leaf weight an opening width up to 700 mm can be realised
  • Two safety scissors are needed per window leaf
Contact us

Application Areas

  • Designed for bottom-hung leaves
  • For use when fitting a chain drive to a bottom-hung window
  • Installation on wooden, PVC or metal windows
  • Leaf and frame installation

Variants & Accessories

Contact

We would be happy to assist you +49-7152-203-0 Mo–Thu: 7.30 a.m. – 5 p.m. / Fri: 7.30 a.m. – 4 p.m Hotline for architects +49-7152-203-112 Mo-Thu: 9:00 a.m. - 4:00 p.m. / Fri: 9:00 a.m. - 3:00 p.m. Service Hotline +49-1802-923392 (0.06 € / Calling from landline, mobile telephony max. 0.42 €)