TSA 325 NT Automatisches Karusselltürsystem für drei- oder vierflügelige Türen mit großem Anwendungsbereich
- Sehr laufruhige verschleißarme Antriebslösung mit mind. 200 mm Kranzhöhe
- Präziser Abschluss der Türflügel mit den Seitenwänden
- Hoher Isolationseffekt gegen Zugluft, Witterungseinflüsse und Lärm
- Einstellbare Automatikgeschwindigkeit passend zum Durchgangsverkehr
- Servo-Funktion zur motorischen Unterstützung bei manueller Öffnung der Tür
- Manuelle Bedienung der Tür möglich, um z.B. Reinigungsarbeiten durchzuführen
- Vernetzbar und mittels offenem Standard (BACnet) in die Gebäudeautomation integrierbar
- Eigenständige Fehlererkennung und Protokollierung
- Frei parametrierbare Ein- und Ausgänge für unterschiedliche Funktionen
- Integrierter Akku für Notöffnung bei sicherheitsrelevanten Fehlern wie z.B. Stromausfall
Anwendungsbereiche
- Drei- und vierflügelige Türsysteme
- Innen- und Außentüren mit hoher Begehfrequenz
- Repräsentative Gebäudeeingänge mit großem Lichteinfall
- Fassaden mit schmalen Pfosten-Riegel-Konstruktionen
- Glasfassaden mit höchsten Designansprüchen
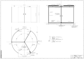
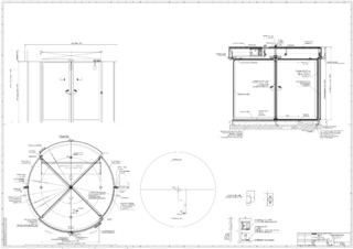
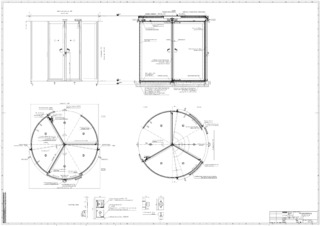
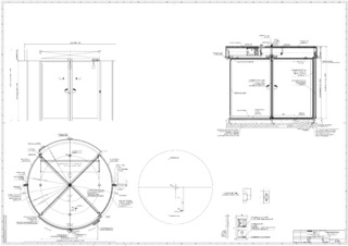
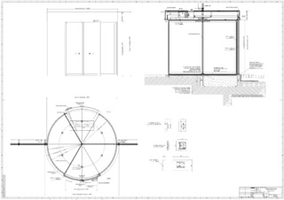
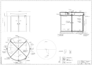
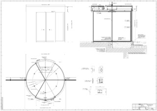
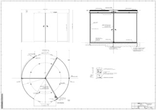
- Innendurchmesser von 1800 bis 3600 mm möglich
- Geeignete Profilsysteme sind feingerahmtes Profilsystem mit ISO- und Mono-Glas
Einbausituationen in Referenzobjekten und Videos
Technische Daten zum Produkt
| TSA 325 NT | |
| Bedienung manuell | Ja |
| Mit Drehzahlbegrenzer (optional) | Ja |
| Mit Positionierautomatik (optional) | Ja |
| Bedienung vollautomatisch | Ja |
| Funktion Servo | Ja |
| Eignung für Flucht- und Rettungswege | Nein |
| Funktion Break-out (BO) | Nein |
| Innendurchmesser (min.) | 1800 mm |
| Innendurchmesser (max.) | 3600 mm |
| Für 3-flügelige Türsysteme | Ja |
| Für 4-flügelige Türsysteme | Ja |
| Lichte Durchgangshöhe | 3000 mm |
| Kranzhöhe (min.) | 200 mm |
| Ausführung Seitenteile | 10 mm VSG, 22 mm Paneelfüllung, 34 mm glattflächiges Paneel, Sondergläser auf Anfrage |
| Ausführung Dachkonstruktion | Staubdach mit Holzabdeckung, optische Blechabdeckung, wasserdichtes Dach mit Speier |
| Beleuchtung | bei Variante mit Dach |
| Bodenbelag | Reinstreifmatte, Reinstreifmatte nach Kundenwunsch |
| Luftschleieranlage | Elektroluftschleier, Warmwasserluftschleier, abhängig von der Deckenkonstruktion möglich |
| Nachtverschluss Anordnung | Innen, Außen |
| Nachtverschluss Typ | Manuell, Automatisch |
| Nachtverschluss Bauart | 10 mm VSG, 22 mm ISO-Glas, 22 mm Paneelfüllung, Sondergläser auf Anfrage |
| Verriegelung | Manuell, Stange, elektromechanisch |
| Türgriffe horizontal oder vertikal | Ja |
| Bodenring | Ja |
| Unterflurantrieb | Ja |
| Taster Sonderfunktion für Menschen mit Behinderung | Ja |
| Normkonformität | DIN 18650, EN 16005 |
Downloads
KENNZEICHNUNGSPFLICHT: © Sigrid Rauchdobler / GEZE GmbH
KENNZEICHNUNGSPFLICHT: © Nicolas Tohme / GEZE GmbH
KENNZEICHNUNGSPFLICHT: © Lothar Wels / GEZE GmbH
KENNZEICHNUNGSPFLICHT: © GEZE GmbH
KENNZEICHNUNGSPFLICHT: © Fotografia Maciej Lulko / GEZE GmbH
KENNZEICHNUNGSPFLICHT: © Robert Les / GEZE GmbH
KENNZEICHNUNGSPFLICHT: © Tarık Kaan Muşlu / GEZE GmbH
KENNZEICHNUNGSPFLICHT: © Robert Les / GEZE GmbH
KENNZEICHNUNGSPFLICHT: © Lothar Wels / GEZE GmbH
KENNZEICHNUNGSPFLICHT: © Tarık Kaan Muşlu / GEZE GmbH
KENNZEICHNUNGSPFLICHT: © Morten Bak / GEZE GmbH
KENNZEICHNUNGSPFLICHT: © Nikolaus Grünwald / GEZE GmbH
KENNZEICHNUNGSPFLICHT: © Truls Busch-Christensen / GEZE GmbH
KENNZEICHNUNGSPFLICHT: © Laurent Pardon / GEZE GmbH
KENNZEICHNUNGSPFLICHT: © Nikolaus Grünwald / GEZE GmbH
KENNZEICHNUNGSPFLICHT: © Nikolaus Grünwald / GEZE GmbH
KENNZEICHNUNGSPFLICHT: © Nicolas Tohme / GEZE GmbH
KENNZEICHNUNGSPFLICHT: © Nicolas Tohme / GEZE GmbH
KENNZEICHNUNGSPFLICHT: © Nicolas Tohme / GEZE GmbH